无设建筑|于工业叙事中重塑光影与体验 Olivino艺术餐厅

2025-10-21 21:22
 
山间影像
青草地、橄榄树林、往来的行人、江面的船只、天空的流云、对岸高耸的建筑天际线……巨大的格栅玻璃将这些动静相宜的画面定格为一幅幅动态的影壁,也由此成为餐厅内最珍贵的艺术陈设。在开阔且丰盈的内外之间,体验已不止于用餐本身。

                            
无设建筑

                            
餐厅项目坐落在上海油罐艺术中心,原建筑主体临靠黄浦江畔,由
OPEN
建筑事务所于
2019
年设计完成。
2024
年,建筑师顾忆基于对原建筑精神的理解,将一座中立、冷静、自由的展览空间,通过克制、尊重与融合的设计手法,转译成为一个具有自然互动性、充满情感的体验空间。
项目视频
© Y
STUDIO
外立方空间影像

                            

                            

                            
鸟瞰
山间影像
俯瞰这片钢结构交织的穹顶,可窥见一方温暖的人间烟火。冷峻的金属线条切割着夜空,却围合出一桌桌丰盛的晚餐
——玻璃杯折射着柔光,人影在暖色调的灯光中晃如油画的笔触。工业的理性与餐食的温情在此间方格中,形成一场奇妙的对话。也在开阔与丰盈中,完成了一次关于空间属性、记忆与情感转化的实践。

                            
屋顶鸟瞰
山间影

                            

                            
屋顶细节
山间影像
“白盒子”到“情感容器”,是“对话而非覆盖”
无论
“展览”还是“餐饮”,两者在“体验”层面的共通性,都希望为使用者提供一段脱离日常的,且富有感染力的美好时光。设计的理念,从功能的更迭,转至情感的续写。尊重与保留原建筑中的工业基因,是本项目中改造的叙事底色。作为一个定位于米其林级别的餐厅项目,在填入其必要的餐饮功能同时,如何共融工业感、精致化及舒适体验之间的有效尺度,是设计的另一处发声。

                            

                            
建筑原貌
山间影像

                            
建筑与城市的对话
山间影像
原建筑体没有隔断,块面明朗。排列有序的天窗是整幢建筑的特点,我们在原有天窗的基础上对结构进行了优化,并借此隐藏照明线路及空调管道。在解决防水保温的同时,强化了顶面的视觉效果。

                            

                            
富有感染力的室内空间
山间影像
两扇玻璃旋转门将室内与廊下灰空间一分为二。为扩容餐厅的使用面积,面朝橄榄树林与黄浦江畔的这片廊下灰空间被合理收编,成为宏大的工业骨架中,描绘北欧设计精神中功能、自然与温暖的一幅流动的框景。

                            

                            
宏大的工业骨架
山间影像
我们保留了其中的一扇旋转门,将其改建为一个瓶状的玻璃酒窖,成为空间里的第一视觉中心。在狭长的建筑体里,圆形结构不仅起到调和的作用,也意在打通内外两个空间。整个场域没有立柱,入口处支起的一座长柄倒挂的铜炉,与玻璃酒窖形成一实一虚的两个圆。同时,铜炉不仅可用于食物的烘烤,冬日里亦可起碳生火,让客人体验一室温暖,岁有小安的融融之乐。

                            
瓶状玻璃酒窖
山间影像

                            

                            

                            
临窗座区
山间影像
光影叙事:塑造空间的第四维度
光,是本项目中无可争议的主角。在日与夜的更替中,首先得益于巨大采光面的建立,使自然光成为空间中最活跃的动态元素。人工光照则在暮色的冉冉升起中接力,继续完成戏剧性的诗篇。

                            
光影叙
山间影像
两个室内空间的顶面保留原有的结构与天窗,与一侧新增的格栅玻璃窗共同构成了一个精微的采光系统。自然光就此被巧妙地
“邀请”进来,作为连接室内外的媒介。白天,阳光成为空间的主照明。在不同时段、不同天气的幻变下,渲染出或明媚、或朦胧的情绪氛围,使餐厅成为一个与自然共呼吸的生命体。

                            

                            
精微的采光系统
山间影像

                            

                            
优雅的光影效果
山间影像

                            

                            
用餐区
山间影像

                            

                            
包间区
山间影像
夜幕降临,倘若此时你站在橄榄树林下,望向面前透着暖光的烟火人间,再喧嚣的尘世也会悄然的宁静下来。再一看,顶面仿佛生出数个倒立的金字塔,优雅且神秘的屹立于天际。低悬的吊灯在桌面形成亲密的聚光圈,强化用餐时的私密性与仪式感。

                            
用餐区细部
山间影像
内外之间:重构艺术的观演关系
面对开阔的挑空,设计通过巧妙的功能布局和家具组合来划分区域,创造出身处大空间中的小聚落感。排列规整的餐桌椅,既营造出仪式般的秩序感,又确保每位客人都能享有开阔的江景,同时感受到空间的通透性与流动感。

                            

                            
仪式般的秩序感
山间影像
青草地、橄榄树林、往来的行人、江面的船只、天空的流云、对岸高耸的建筑天际线
……巨大的格栅玻璃将这些动静相宜的画面定格为一幅幅动态的影壁,也由此成为餐厅内最珍贵的艺术陈设。在开阔且丰盈的内外之间,体验已不止于用餐本身。城市、艺术、生活、自然、诗性,在重构与重塑中继续其“展示”与“启发”的使命。

                            

                            

                            
夜景
山间影像
项目图纸

                            
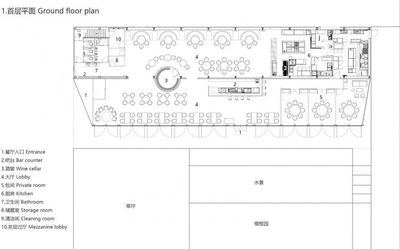
首层平面
无设建

                            
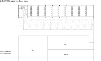
夹层平面
无设
建筑
项目信息
项目名称:
Olivino
艺术餐厅
室内设计:无设建筑
主创设计师:顾忆
设计团队:苏美娜、秦俊飞、欧书琴
项目地址
上海
设计内容:室内
项目面积:
626
完工日期:
2025
项目类型:商业餐饮
主要材料:艺术漆,金属板,手工砖、金箔
空间摄影:山间影像
空间视频:
STUDIO
外立方空间影像

                            
   

采集分享

举报

Jasmine

什么也没写

710 作品/ 0 人气

  • 别默默的看了,快登录帮我评论一下吧!:)

    注册 登录

    更多评论

    推荐作品


    相关文章

    下载

    加入到画夹管理

    添加画夹

    提示

    右键保存、高清大图仅支持VIP会员
    名师作品集【专享】
    全网名师最多、更新最快、作品最全
    作品库【无限查阅、一键下载】
    全球最大室内作品库,超33万部
    精品资料【下载】
    全年精品资料更新超1000部
    灵感搜索【原图下载】
    中文搜索全球顶尖案例灵感图
    设计师生活馆【内购价】
    5大电商平台官方合作,专享内购价
    CAD库【模型下载】
    cad单体模型库精准搜索查找下载
    免广告打扰【屏蔽】
    屏蔽全站广告,享受纯净体验
    3D模型【送199币值199元】
    分享全网最新精品3D模型
    名师与资料完善后,价格涨至699元/年