私宅丨400㎡诗意别墅:纯净如简,自然而然_20251021

2025-10-21 19:30
01
观诺设计

                            
这是一套400㎡位于浙江台州的别墅,设计师通过克制的方式为一家四口打造出了可以守护家人的空间。空间纯净如简,庇护者家人的梦,更保护着做梦者,抵御一切外部的风雨。

                            

                            
设计师将原本一跨的采光井延伸至整个地下室开间的尺度。光线肆意的倾泻而下,洒在雕塑般的室内空间。

                            

                            

                            
浅色沙发慵懒地承载着时光,深色茶几似沉稳的画框,框住绿植的鲜活与书籍的墨香。电视墙旁烛光摇曳,为空间晕染出温馨的光晕。

                            

                            

                            
吧台区域石材的肌理与木质的温润相融,精致的器皿有序摆放,仿佛在等待一场美食与爱的邂逅。

                            

                            

                            
与沙发相邻的茶室,木质带着自然的纹理与温度,陈列架上的器物静静伫立,诉说者主人对于禅茶生活的品味与故事。

                            

                            

                            

                            
转角处,一方小天地藏着自然的意趣。
一侧的墙面轻轻转动方向,立面流出几处方形透光口,光线在此得以更加诗意的漫游

                            

                            
脚步拾级而上,来到一层,踏步处的绿植生机勃勃,光线与自然的元素依然延续,空间的舒适感也因为真实自然的介入而愈发浓郁。

                            

                            

                            
客厅里,浅色调的沙发柔软而宽大,仿佛能将所有疲惫都温柔包裹。玻璃与石材搭配的茶几错落摆放,书籍与物件透着生活的闲情逸致。

                            

                            

                            
视线流转,餐厨空间与客厅紧密相连。椭圆形餐桌的周围,座椅简约大方,皮质与木质让人的坐感与触感更为温暖舒适。

                            

                            

                            

                            
当下的社会,工作与生活早已无法清晰的区分。一处兼具书写与阅读的工作角在满足轻办公诉求的同时,更为空间点缀了人文气息。

                            

                            
步入二层的主卧,瞬间被宁静与雅致包裹。柔软的床品铺展,仿佛云朵般轻柔,搭上的深棕色毛毯,为空间添了几分温暖质感。

                            

                            

                            
通向卫浴的廊道,光线柔和,隐约能瞥见里面的布局。定制的衣柜线条利落,白色与木色的搭配,既显整洁,又饱含自然气息。

                            

                            

                            

                            
两间次卧实则为男孩与女孩的卧室,设计师没有附和当下儿童房的低幼化风格。

                            
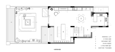
平面图

                            
项目地点:浙江·台州
项目面积
400平米
设计机构
观诺设计
设计总监
徐波
图片拍摄
单行线空间摄影
02
观正建筑设计

                            
本案为一个热爱烘焙的业主量身打造的四口之家将家的核心从传统的客厅转向充满阳光与生命力的开放式地下空间。

                            

                            
设计不只关注功能,更注重人,空间,自然之间的互动,营造一种温暖,通透且充满幸福感的生活氛围。

                            

                            

                            
空间呼吸感,采用横向与纵向的开放式布局,让负二负一和一楼连贯互通,形成通透的整体,这不仅方便了烘焙时与家人朋友的互动,更让空气与光线得以自由流动,使家成为一个能自由“呼吸”的有机体。

                            

                            
天井下是茶室的视觉延伸地,像是欢迎每一道光走进来饮一杯叙叙旧,又像是勾引着每一个人走过去抬头完成与天空的对望。

                            

                            

                            

                            
这层区域有它的表世界和里世界,穿过旋转楼梯旁的墙。一道狭窄的过道后隐藏着盥洗和洗衣区同时也通过挑空区域让空气和人都能彼此互动。

                            

                            

                            

                            
负一层空间有着细腻的层次划分,下沉式的烘焙工作室和客卧相对。中间是光线洒落的天井和蓬勃生长的植物,下沉式的设计往往像是一种宣言。

                            

                            

                            
此间搭配了不锈钢色的台面和黑色地砖及橱电,它们在等待擅长烘焙的女主人作品的出炉。

                            

                            

                            

                            
设计保留了一些原始的墙面,这种墙面和房梁上所呈现的痕迹,比许多涂料看起来更加丰富。

                            

                            

                            

                            

                            
去风格化的客餐厅设计,多元单品之间的微妙联系。进门就能感受到木作所框的生活场景,有序的功能和无序的舒适在此间缓慢诞生。

                            

                            
即将开餐的家庭成员们,可以选择他喜欢的椅子落座,不必为了视觉上的规整而强行统一全家人不同年龄段的审美。

                            

                            
空间设计的最终命题,人和空间,自然之间的互动,会回归到关于人类情感的安放,希望它不仅是追寻原始依赖的安心居所,更是通往自由,生机勃勃的精神世界。

                            

                            
平面图

                            

                            

                            

                            
项目地址:安徽合肥
设计面积
400平
设计机构
观正建筑设计
设计总监
方日新
文案撰写
青山邈
延伸阅读

                            
投稿邮箱tuozhe8@qq.com
小编微信tuozhe111
拓者设计吧

                            
公众号修改了推送规则
现在必须加
“星标”
才能第一时间收到推送

                    

举报

环球设计

什么也没写

16004 作品/ 0 人气

  • 别默默的看了,快登录帮我评论一下吧!:)

    注册 登录

    更多评论

    推荐作品


    相关文章

    下载

    加入到画夹管理

    添加画夹

    提示

    右键保存、高清大图仅支持VIP会员
    名师作品集【专享】
    全网名师最多、更新最快、作品最全
    作品库【无限查阅、一键下载】
    全球最大室内作品库,超33万部
    精品资料【下载】
    全年精品资料更新超1000部
    灵感搜索【原图下载】
    中文搜索全球顶尖案例灵感图
    设计师生活馆【内购价】
    5大电商平台官方合作,专享内购价
    CAD库【模型下载】
    cad单体模型库精准搜索查找下载
    免广告打扰【屏蔽】
    屏蔽全站广告,享受纯净体验
    3D模型【送199币值199元】
    分享全网最新精品3D模型
    名师与资料完善后,价格涨至699元/年