江 原 自由的盒子_20251021
2025-10-21 19:18
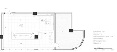
作为REXON在国内的办公室和展厅,80多平米的空间不仅承载着日常办公和接待功能,更是企业对外展示的窗口。ByoArc希望摒弃传统的办公空间模式,
以使用者的需求为切入点,探寻更加灵活可变的布置方式从而适应不同的使用场景。
在传统办公与展览空间中,固定隔墙往往割裂了人与空间的互动可能,因此设计以“流动空间”为核心理念,通过拆除所有非承重墙,将原始空间彻底释放为一个无阻隔的开放场域。入口也移至直面电梯厅的位置,从而让展厅空间变得更具公共性。
场地中央的承重柱被转化为空间叙事的焦点,将其延伸为长度为6m的矩形展台
,展台整合了产品展示抽屉、嵌入式水吧台及隐藏式电源接口,满足了从咖啡沙龙到产品展示的多场景需求。
和展台相结合的柱子是空间的视觉中心,其表面不做任何处理,将混凝土粗糙的表面暴露出来。
柱身包裹定制不锈钢网架系统,通过可变模块快速装卸置物层板。
这一设计既消解了柱体的突兀感,又赋予空间垂直维度的叙事弹性:当前可能是物品陈列架,未来也可变为植物墙。
以“人的行为”为设计原点,将空间转化为可自由组装的模块系统:办公、展览、接待社交等功能不再被物理边界定义,而是随着使用需求随时可以动态重构。
这种设计哲学既是对工业化时代空间效率的反思,也是对后疫情时代多样办公模式的回应。
大盒为高的柜体,设置了企业展示内容,小盒则集成茶水桌与储物模块,底部均配备静音万向轮与定位卡扣。
大盒平行布置,形成贯通展厅与沙龙区,与展台形成环游动线。
空间顶部不设吊顶,增加展厅高度,裸露的管线涂刷白色涂料,与定制轨道射灯系统构成工业美学基调
,光线通过可调角度灯具精准投射展品;展台整体采用木板,侧面局部采用哑光不锈钢拼接,北侧和西侧的墙面被用于产品展示需求,冷峻与温润的碰撞隐喻办公与展览的功能共生。
整个空间并非一个完成态的静态作品,而是一个持续进化的有机体。
通过消解固化的空间范式,让建筑回归到最本质的使命——作为人类活动的催化剂而非容器。
项目客户:REXON POWER TRANSMISSION COMPONENTS PTE. LTD.
举报
别默默的看了,快登录帮我评论一下吧!:)
注册
登录
更多评论
相关文章
-
描边风设计中,最容易犯的8种问题分析
2018年走过了四分之一,LOGO设计趋势也清晰了LOGO设计
-
描边风设计中,最容易犯的8种问题分析
2018年走过了四分之一,LOGO设计趋势也清晰了LOGO设计
-
描边风设计中,最容易犯的8种问题分析
2018年走过了四分之一,LOGO设计趋势也清晰了LOGO设计