新作|MOKO木可营造设计 :LONYATT龙悦酒店 首
2025-10-12 20:26
以开放通透的现代建筑语言
实现传统与现代自然共生
LONYATT龙悦酒店
选址淮阳文脉核心,以太昊陵“三重院落”格局为设计原型,占地27亩、建筑面积约3万平方米,融合“礼、序、周、正”的传统空间哲学与现代酒店功能。通过当代转译陵庙院落序列,延续华夏文明对空间秩序的尊崇,以开放通透的现代建筑语言实现传统与现代自然共生,使太昊陵文化基因在现代建筑中焕发新生。
▲ 建筑外观
▲ 项目视频
太昊陵作为伏羲氏陵庙,因伏羲氏“一画开天”成为中华文明源头之一,承载“礼、序、周、正”东方哲思;其三重院落格局,暗合“天、地、人”三才之道,“前有照、后有靠、左右有抱”的布局智慧,已融入中华建筑基因。这片坐落于淮阳的文化圣地,其蕴含的空间哲学与人文精神,为当代建筑设计提供了深厚的灵感土壤。
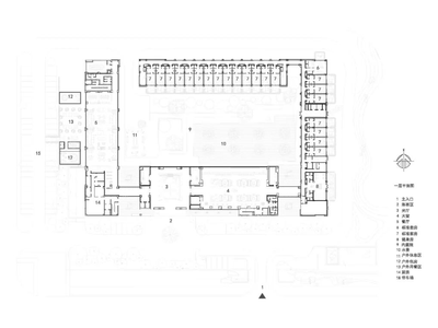
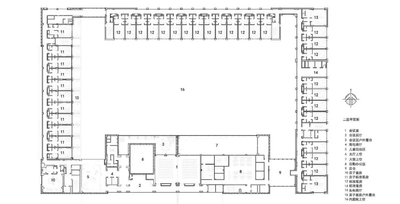
| 项目图纸
▲ 建筑实体模型推导
▲前期概念手绘
左右滑动,查看更多 →
从左到右依次为:整体规划、建筑剖面、
一层平面图、层平面图
▲建筑外观
▲落客区
第一重:
礼之始,喧嚣至静谧的过渡
酒店入口“第一进”以光为引、以自然为界,延续“由外入内”的礼序仪式,消弭城市喧嚣与酒店静谧的边界,既是物理缓冲,更是从“尘世”到“雅境”的心理转场,让“礼”的序章在当代语境自然铺展。
▲光 厅
第二重 :
序之境,光与风的诗意流动
肌理、光影与材质的微妙互动,铺展太昊陵礼序基因的当代转译;天光倾泻,随时间在天然石材地面投射流动光影,暗合陵庙轴线秩序。
风携草木清气穿堂,轻叩浅池漾涟漪;天光垂落与池影共舞,交织“风动影移”的流动韵律。材质刚柔相济,光风自然流转,使“序”在光影摇曳、风息轻拂的感官觉醒中,流淌成诗意空间叙事。
▲大 堂
第三重:
周之容,宾客与文脉的交融
建筑以周全包容之境承续文脉、容纳宾客。木饰面温润肌理承接柔光,漫溢光晕赋予空间朦胧质感,与器物默契对话;隔绝喧嚣,人在木的呼吸、光的流淌与器物静默中暂离纷扰,回归内在宁静。
▲大 堂
40米长接待台如打破常规的流动长卷,台面从办理区漫延成调酒师舞台,既是服务边界亦是社交起点,使严谨入住流程与微醺举杯瞬间温柔相拥。
▲大 堂
让每一次驻足都成为相遇的序章,每一寸空间都生长着互动的温度。
▲大 堂
东方雅致器物于此共生:泥泥狗稚拙与陶瓷温润对话,荷纹清雅与木构沉静共鸣,器物皆为东方文化的虔敬礼赞。宾客漫步其间,指尖轻触泥泥狗图腾纹路,似与远古先民隔空对望。
▲大 堂
酒店各层围绕“自然的肌理”叙事,以石、木、土、水为灵感构建材质语言,层层递进,编织有情感温度的空间序列。自然的肌理化作空间叙事诗,使每一层成为情感与材质的共鸣场。
▲全日餐
酒店不再是匆忙的驿站,而是感官的栖息地——当建筑师的结构理性、设计师的细节敏感与艺术家的诗意想象交融,便重塑了都市与心灵的相处之道:让奔波的感官在此停靠,让疲惫的灵魂在此找到与世界温柔对话的节奏。
艺术装置是空间的静默叙事者,以材质、光影与荷花交织,织就优雅松弛、细腻奢华的感知场域,引观者与自然静谧相拥。
▲客房过道
▲电梯厅
深浅交织的色调,营造出沉稳静谧氛围,似在喧嚣中辟一方古雅天地,让宾客暂别纷扰,沉浸式感受东方美学的悠然意境。
▲标准客房
客房墙面,是地域文脉的诗意转译,将本土文脉的灵秀气韵,化作触手可及的艺术背景.
▲标准客房
客房尺度,是人与时间的诗意对话——目光穿过净窗,阳光漫入,微风拂面,完成“内与外”的温柔转译;人立于框景前,时间便在此驻足。
▲标准客房
开放式布局以“消弭边界”为笔,在传统客房的封闭框架上,而是以“半透”与“流动”重构空间的呼吸感。
▲行政套房
开放式布局使空间告别孤立盒子,成为自然延伸、光影容器与风的脉络;人在此呼吸,化身为开放诗篇的一行,边界消融处,唯余自由生长的空间与心。
▲行政套房
▲总统套房
宁静与奢华不再是对立的词,而是同一种呼吸——当人在此驻足,在这方由木、石、土与光风共筑的疗愈之境,与自己的心跳重逢。
▲总统套房
自然的馈赠在此作主角,让“少即是多”的可持续哲思,在光影流动间悄然生长。
▲总统套房
木的温润触抵掌心,是与内在的絮语相拥;光的碎金落满肩头,风携草木呼吸掠过耳畔,这与自然的默契共生,便是奢华最本真的模样。
▲特色套房
案头留白引思绪专注,木质的温度与织物的柔软,让心在此找到归属的港湾。
项目信息
项目名称:
LONYATT龙悦酒店
项目地点:河南,周口
业主方:河南恐龙旅游发展有限公司
项目面积:24,126平方米
设计时间:
2022年08月
开业时间:2024年12月
建筑方案:木可营造建筑设计
室内设计:木可营造建筑设计
设计深度:
建筑设计
、室内设计、
FF-E设计
、施工图设计、灯光设计
设计主持:柯建新
设计团队:储添送、徐晓辉、魏蕊、冯如玉、杜珍、彭凯、洪超、熊露
摄影团队:ToPIA图派视觉
柯建新
木可营造室内设计事务所创始人、设计总监
MOKO诞生于对酒店行业的深度洞察与设计热忱。我们以精锐团队为核心,主要致力于为国际品牌酒店及高端地产、商业、办公项目提供优质的建筑及室内设计服务。公司团队成员以共卓越的专业知识背景、国际化的前沿视角、丰富的大型项目运作经验及良好的执行能力,不断打造出极具前瞻性的创意作品,同时在公司完善的项日控制管理协作平台支撑下,在全国各地留下了影响深远的标志性项日。
我们以设计赋能品牌,让每一寸空间讲述故事。作为MOKO的设计掌舵人,始终坚信“空间是无声的叙事者”,拒绝符号化的美学堆砌,而是让空间成为承载品牌精神与人文记忆。新始终以“让中国设计走向世界”为使命,其作品既保持国际视野的现代质感,又深植东方文化的精神内核。

PintereAI








