现代主义宣言 Castelli Romani别墅 STUDIOTAMAT_20251024
2025-10-24 19:09
Peter Molloy
STUDIOTAMAT以细腻的设计手法在别墅原有精神与当代建筑语言之间建立了无缝对话。项目在尊重历史身份的同时,以真诚且富有生命力的方式重新诠释其价值。
感谢
STUDIOTAMAT
对gooood的分享
这座别墅最初建于
20
世纪
60
年代,其设计灵感源自弗兰克·劳埃德·赖特的“尤索尼亚建筑”理念——以简洁的线条、明晰的平面布局以及与自然环境和谐融合的材料为特征。最初,这里是一对经常环游世界出差的夫妻的度假住所,既为他们提供宁静的休憩空间,又可欣赏自然景观。别墅位于格罗塔费拉塔与弗拉斯卡蒂之间的丘陵地带,兼具纯净自然环境的静谧与罗马的城市便利。如今,它成为屋主——
Daniele
Sara
及他们的三个女儿
Fiamma
Sole
Celeste
——一家人与自然亲密共处、又不失都市生活便利的理想居所。
室内概览
© Peter Molloy
STUDIOTAMAT
延续了这种哲学,通过保留别墅原有的建筑元素,并以创造性的方式强化室内与室外的共生关系。石墙、裸露砖面、木材与混凝土等真实材质被保留并重新演绎,通过光与质感的对比,焕发出新的生命力。平面布局被重新定义——大部分走廊及部分辅助用房被移除,从而打开空间流线,让整座住宅的动线更为流畅。
打开空间流线
© Peter Molloy
客厅局部
© Peter Molloy
“在改造过程中,我们特别强调了那些原有的建筑细节,它们也启发了部分定制家具的设计。例如厨房的窗框与
Sara
楼上的书房,都采用了菱形中轴图案,呼应别墅中保留下来的
1950
年代铁艺装饰。这是一种平衡的艺术:这座房子同时提供了激发灵感与放松心绪的空间。”
STUDIOTAMAT
联合创始人
Matteo Soddu
解释道。
厨房的窗框采用了菱形中轴图案
© Peter Molloy
入口处设有定制衣柜,柜体内衬
Opificio
出品的 “
Viceversa Monet
” 布料,并以优雅的坦干伊喀胡桃木收边,体现出
STUDIOTAMAT
对工艺与细节的极致关注,也反映了其“精致而恒久”的设计理念。原有的山毛榉木门窗被修复,保留了别墅的历史神韵,深化了其与过去的精神联系。在客厅与餐厅区域,修复后的石制壁炉自然融入石墙之中,营造出温馨而宜人的社交与休憩氛围。
“精致而恒久”的设计理念
© Peter Molloy
修复后的石制壁炉自然融入石墙之中
© Peter Molloy
别墅的椭圆形楼梯是空间的核心视觉焦点,自入口即可见,并对称地组织了底层空间。东侧客厅以一面石墙为基底,嵌入壁炉,构成会客区;两组大沙发则围合出电视区。客用卫浴空间整体包覆以
Colony
壁纸,以茂密异域植被为主题,色彩浓烈,搭配
Devon-Devon
的雕塑感洗手盆,呼应
1920
30
年代的美式装饰风格。
椭圆形楼梯
© Peter Molloy
西侧的
40
平方米美式厨房配有定制波斯红洞石中岛,集成灶台、油烟机与铁板烧设备。窗下的卡座餐区为小型用餐提供私密空间,而一系列嵌板巧妙地隐藏了冰箱、储藏柜及通往服务区与辅助楼梯的隐蔽通道。厨房与餐厅之间以整高磨砂玻璃隔断柔和分隔,保持视觉通透。
美式厨房配有定制波斯红洞石中岛
© Peter Molloy
窗下的卡座餐区
© Peter Molloy
巧妙地隐藏了冰箱、储藏柜
© Peter Molloy
家具的选择体现了屋主兼具理性与感性的个性,将复古与当代设计相融合。客厅内,
Arflex 1970
年代的
Marenco
沙发搭配
Punto Zero
Plastiz
出品的
Rammendi
坐墩与茶几;餐厅中,
Knoll
Marcel Breuer
设计 “
Cesca
” 椅环绕于
Punto Zero
Big
” 系列限量版餐桌周围。这张高光漆面定制色桌面强化了自然光的反射,使空间在明暗交替中更显轻盈。楼上,橡木人字拼地板以“姐妹花纹”铺设,串联卧室与主楼梯,整体以柔和的奶油色树脂地面贯通。居中的
Sara
书房以定制玻璃隔墙与大窗引入露台景观,天花以
Little Greene
出品的托斯卡纳红饰,为光影空间增添温度。
楼上公共空间
© Peter Molloy
以定制玻璃隔墙与大窗引入露台景观
© Peter Molloy
以定制玻璃隔墙与大窗引入露台景观
© Peter Molloy
主卧的
Colony
壁纸暗藏套间入口,套间内设有独立浴缸与一体化阿拉贝斯卡托大理石洗手台,呈现低调奢华的氛围。三位女儿的卧室则根据性格各具特色,定制衣柜与软包床体采用
Opificio
的棉质天鹅绒,并点缀
Disney Home
壁纸,在优雅中融入童趣。两间卧室之间的共用梳妆区设有
Valdama
洗手盆与鸽蓝色镀锌铁柜体,墙面铺设
Cristina Celestino
Fornace Brioni
设计的
Tivoli
系列瓷砖,形成独特的过渡空间,既分隔又连通。顶层阁楼拥有俯瞰罗马的开阔视野,被打造为家庭的休闲与娱乐空间。
Artigo
出品的赤陶橡胶地板划分出影院与游戏区,供三个女儿在冬季与家人一同放松、享受温暖惬意的家庭时光。
卧室则根据性格各具特色
© Peter Molloy
具有特色的壁纸
© Peter Molloy
在优雅中融入童趣
© Peter Molloy
STUDIOTAMAT
以细腻的设计手法在别墅原有精神与当代建筑语言之间建立了无缝对话。项目在尊重历史身份的同时,以真诚且富有生命力的方式重新诠释其价值。从天然材料到量身定制的家具,每个细节都参与构建一个连贯的叙事——在这里,空间不仅被居住,更被激活,成为居者生命故事中的主角。
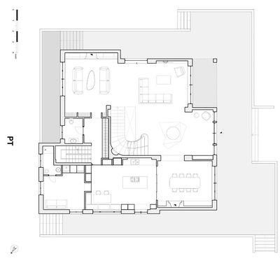
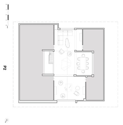
项目图纸
一层平面
© STUDIOTAMAT
二层平面
© STUDIOTAMAT
三层平面
© STUDIOTAMAT
PROJECT NAME A Villa in the Castelli Romani
LOCATION Grottaferrata
ARCHITECT STUDIOTAMAT
(Tommaso Amato, Matteo Soddu e Valentina Paiola)
PROJECT TEAM Tommaso Amato, Matteo Soddu e Valentina Paiola, Silvia D
Alessandro
CONTRACTOR Ediltel B
CLIENT Private
DATE 2025
GFA
Indoor area: 400 sqm
Outdoor area: 3,200 sqm
TIMELINE Project assignment: December 2022
Work start: March 2023
Completion: October 2024
版权©www.gooood.cn,欢迎转发,禁止以gooood编辑版本进行任何形式转载










