summer house gravrak
2016-12-15 00:54
这一夏季务虚会项目是在洛夫滕沿海岛屿地区一处偏远地点的“诺德兰舒斯”(挪威北部传统房屋)的扩建和修复。最初的想法是将旧的、破旧的木芯封装在一个新的气候外壳中,使老房子在里面自由站立,结构不受强调,而传统的木材结构则暴露在外面。新增的建筑遵循了它自己的网格模块,除了一些技术优势之外,它还对新旧结构之间的窗口开口进行了有趣的“切分”。
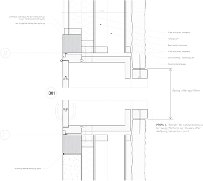
然而,在已建成的项目中,对现有房屋选择了一种更为传统的翻修方法。这就减少了我们对建筑的贡献,适用于西方的加添,和一个小的附件。新增是现有建筑的一个纯粹的延伸,并重复使用几何原理与不对称的背窗,让光线和从阁楼的看法。扩建工程的主要结构是预制的松胶。室内覆盖着桦木胶合板,而外表则覆盖着未经处理的云杉,经过两年的阳光和雨水照射后,云杉已经变灰了。屋顶覆盖着立缝锌屋顶,窗户有两个折叠的框架,外面是铝,内部是木头。
这个地区的气候确实很极端,特别是考虑到风的情况。虽然老房子是男的-有线在地面,延伸是风锚定在封装混凝土板,作为一个稳定的抗衡作用。
艺术品(必须在这里)是由瑞典艺术家Jan H fstr m创作的。
建筑师:卡尔-维戈·赫尔梅贝克担任
Team
卡尔-维戈·赫尔梅贝克
伊丽莎白·奥利摩
Halvard Amble
Hilde Rostadmo
图片:卡尔-维戈·赫尔梅贝克
Firm Carl-Viggo Hølmebakk AS ARKITEKTKONTOR
Type Residential › Private House
STATUS Built
YEAR 2015
SIZE 0 sqft - 1000 sqft
Photos Carl-Viggo Holmebakk
keywordsarchitecture, architecture news, interiors, interior design, portfolio, spec, brands, marketplace, products Summer House Gravråk
关键词建筑,建筑新闻,内饰,室内设计,组合,规格,品牌,市场,产品夏季别墅Gravr k
这个夏季务虚会的项目是对挪威北部一处偏远地区的旧“诺德兰舒斯”(传统的挪威房屋)的补充和修复。

PintereAI








