casa mipibu
2017-05-09 03:17
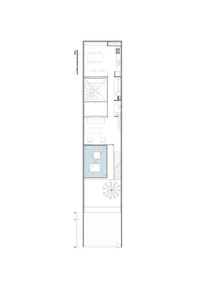
这所房子代表了圣保罗的一个非常常见的情况,这是一个狭长的地面[5.6x30.0m],只有前面的高度,不受周围建筑物的干扰。
这一挑战从我们必须满足这一领域的广泛计划的时刻开始增加,这导致我们允许最大占用170平方米。
随着土地的价值越来越高,我们和许多其他建筑师都在努力为他们的客户、为他们自己和城市提出好的项目,以达到两倍于这类小地块理想面积的解决方案。
考虑到不可避免的垂直化的邻居,他们都粘在边界上,第一步是扭转正面,认为项目“内向外”,因为它将拿出一个手套。
所以当我们把框架带进去的时候,我们可以把它们用得精疲力竭,使它的内部变得非常开放,而不是完全封闭的外部周界。
然后我们布置了两个内部庭院,但作为房子的外部区域。和其他办公室项目一样,他们组织一切。除了为健康和空间质量提供必要的照明和通风外,还能将房间清晰地表达出来。
对于客户来说,另一个意想不到的决定是在一楼的卧室的位置,通常用于社交区域,所以我们将“地面”上升到上层。
这一决定给出的是私密楼层、卧室、更大的隐私和安静。为社会铺装提供了与楼板融为一体的屋顶,作为休闲场所,因此,不发生由密室地板造成的干扰。它也成为了社会领域更好的照明和通风。
在客户的要求下,其中一个庭院变成了一个水镜,与它一起,另一个重要的因素是同时进行景观设计。
这样,就有可能提供适当的结构,使顶层甲板上的一棵大树在紧邻房间的室外露台上既能接上一棵大树,又能把盘子的重量与落在水镜上的植物一起承受。
同样,资源稀缺,但许多承诺提出的方法,使之成为一项可行的工作中的批判性思维。
Firm Terra e Tuma Arquitetos Associados
Type Residential › Private House
STATUS Built
YEAR 2016
SIZE 1000 sqft - 3000 sqft
keywordsarchitecture, architecture news, interiors, interior design, portfolio, spec, brands, marketplace, products casa mipibu
关键词建筑、建筑新闻、室内设计、组合、规格、品牌、市场、产品
这所房子代表了圣保罗的一种非常普遍的情况,这是一个狭长的地面[5.6x30.0m],只有前面的高度,不受.

PintereAI








