Phong House,越南岘港 现代极简与乡村诗意的融合_20251009

2025-10-09 22:44

                            
Phong House rises from a suburban village where modern rhythms meet rural serenity. Designed for a young family, it balances contemporary comfort with a deep connection to its surroundings. The architects reinterpret traditional Vietnamese architecture through a modern lens, creating a home that feels both familiar and fresh, where the past informs the present in a dialogue 跨越 generations.
Phong House 坐落在一个现代节奏与乡村宁静交汇的郊区村庄。为年轻家庭设计,它平衡了当代舒适与与环境的深厚联系。建筑师以现代视角重新诠释越南传统建筑,创造出既熟悉又新颖的住宅,让过去与现在在跨越代际的对话中相互交融。

                            

                            

                            
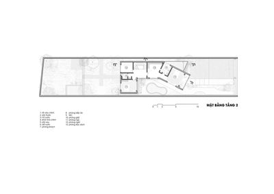
The house features a minimalist form with a rotated second floor oriented toward the southeast to capture prevailing breezes and reduce solar heat gain. This strategic move creates a distinctive silhouette and generates a harmonious relationship with the ground floor garden corridor below. The traditional pitched roof is reinterpreted with modern tilework, giving the home a contemporary expression while honoring local building traditions.
住宅采用极简主义造型,二层体量向东南方向旋转,以捕捉主导风向并减少太阳辐射得热。这一策略性设计创造了独特轮廓,并与下层花园走廊形成和谐关系。传统坡屋顶通过现代瓦作重新诠释,既赋予住宅当代气息,又尊重当地建筑传统。

                            

                            

                            

                            
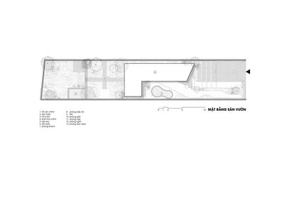
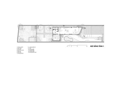
The ground floor combines living, dining, and kitchen into a continuous open space. Large sliding glass doors disappear into the walls, extending daily life into the garden and a shallow wading pool. The 30-meter-deep backyard functions as a miniature park, offering different experiences throughout the day as sunlight filters through leaves and water reflects the changing sky, creating a dynamic yet peaceful atmosphere.
一层将客厅、餐厅和厨房融合成连续开放空间。巨大滑动玻璃门将室内生活无缝延伸至花园和浅水池。30 米深的后院如微型公园,全天提供不同体验 —— 阳光透过树叶洒落,水面映照着变化的天空,创造出既生动又宁静的氛围。

                            

                            

                            
Bedrooms on the second floor overlook the garden and courtyard, enclosed by vertical wooden louvers. These carefully designed screens filter sunlight into a dance of light and shadow that animates the interiors throughout the day. At night, warm lighting transforms the louvers into a glowing veil, creating a sense of privacy and tranquility that invites rest and reflection after a busy day.
二层卧室俯瞰花园和庭院,由垂直木制百叶窗围护。这些精心设计的屏风将阳光过滤成光影舞蹈,全天为室内增添生动变化。夜晚,温暖灯光将百叶窗转化为发光帷幕,创造出私密宁静的氛围,邀请人们在忙碌一天后休憩反思。

                            

                            

                            
The material palette includes exposed brick, raw concrete, timber, and reinterpreted roof tiles. These natural materials age gracefully, developing a rich patina that records the passage of time. Combined with thoughtful openings, skylights, and louvers, they create a home that breathes with the seasons, offering abundant natural light and ventilation that connects inhabitants to the rhythms of nature throughout the year.
材质选择包括裸露砖墙、素混凝土、木材和重新诠释的屋顶瓦。这些自然材料优雅地老化,形成记录时间流逝的丰富质感。结合精心设计的开口、天窗和百叶窗,它们创造出随季节呼吸的住宅,提供充足自然光和通风,让居住者全年都能感受到自然的节律。

                            

                            

                            

                            

                            

                            
Phong House embodies a human-centered approach where environmental sustainability enhances family life. The large garden and wading pool naturally cool the microclimate, reducing the need for mechanical systems. The open-plan layout encourages family interaction while respecting privacy through thoughtful zoning. For the community, the homes design bridges contemporary living with cultural heritage, creating a harmonious presence that celebrates Vietnamese identity in a modern context.
Phong House 体现了以人为本的设计理念,其中环境可持续性提升家庭生活品质。大花园和浅水池自然调节微气候,减少对机械系统的依赖。开放平面布局促进家人互动,同时通过精心分区尊重隐私。对社区而言,住宅设计在当代生活与文化遗产间架起桥梁,以现代语境诠释越南身份认同,创造和谐共存的建筑存在。

                            

                            

                            

                            

                            

                            

                            

                            

                            

                            

                            

                            

                            

                            

                            
编辑:
夏边际
撰文:豆宝宝
校改:吴一仁
编排:布忠耀
本文素材图片版权来源于网络,
如有侵权,请联系后台,我们会第一时间删除。
建筑 | 室
内 | 设计 | 艺
商务联络

                            
合作微信:toot8668
长按二维码识别添加好友
投稿邮箱:93126349@qq.com

                    

举报

环球设计

什么也没写

16034 作品/ 0 人气

  • 别默默的看了,快登录帮我评论一下吧!:)

    注册 登录

    更多评论

    推荐作品


    相关文章

    下载

    加入到画夹管理

    添加画夹

    提示

    右键保存、高清大图仅支持VIP会员
    名师作品集【专享】
    全网名师最多、更新最快、作品最全
    作品库【无限查阅、一键下载】
    全球最大室内作品库,超33万部
    精品资料【下载】
    全年精品资料更新超1000部
    灵感搜索【原图下载】
    中文搜索全球顶尖案例灵感图
    设计师生活馆【内购价】
    5大电商平台官方合作,专享内购价
    CAD库【模型下载】
    cad单体模型库精准搜索查找下载
    免广告打扰【屏蔽】
    屏蔽全站广告,享受纯净体验
    3D模型【送199币值199元】
    分享全网最新精品3D模型
    名师与资料完善后,价格涨至699元/年