比利时的美术馆级住宅,极简与粗野的对话

2025-04-27 21:22
  
Glenn Sestig Architects
Pavilion Sestig
//
位于比利时德勒(Deurle)绿意盎然的优雅卫星城区内,Pavilion Sestig是一座具有重要历史价值的现代主义混凝土住宅。该建筑由建筑师Ivan Van Mossevelde于1972年为神经心理学家Roger Matthys夫妇设计,业主夫妇作为狂热的艺术收藏家,将这座1000平方米的单层住宅打造成兼具居住功能的美术馆。
Pavilion Sestig is a modernist concrete residence with significant historical value located in the elegant, green satellite town of Deurle, Belgium. Designed by architect Ivan Van Mossevelde in 1972 for neuropsychologist Roger Matthys and his wife, the owners, who are avid art collectors, turned this 1,000 square meter single-story residence into an art gallery with residential functions.
该住宅作为当地罕见的现代主义建筑,其建造过程需要获得70位邻居的签名同意,内部采用纯白墙面和地毯的装修风格极具1970年代特色。在建筑师Glenn Sestig与合伙人Bernard Tournemenne于2019年完成精心修复后,这座建筑不仅成为Glenn Sestig建筑事务所的新总部,同时也作为两人的居所和工作室使用。
As a rare modernist building in the area, the construction process required the signatures of 70 neighbors, and the interior decoration style with pure white walls and carpets is very 1970s. After the careful restoration completed by architect Glenn Sestig and partner Bernard Tournemenne in 2019, the building not only became the new headquarters of Glenn Sestig Architecture, but also served as the couples residence and studio.

                            
秉承可持续发展的设计理念,使Pavilion Sestig在未来数十年内保持卓越品质与完整状态。

                            
设计师Glenn Sestig与Bernard Tournemenne的设计理念体现出对建筑品质的极致追求。Sestig注重建筑生命周期的长远考量,坚持采用优质材料和工艺确保建筑历久弥新,虽然这种做法会增加成本,但能使建筑在未来二三十年内保持完好状态。
The design concept of designers Glenn Sestig and Bernard Tournemenne reflects the ultimate pursuit of architectural quality. Sestig pays attention to the long-term consideration of the life cycle of the building, and insists on using high-quality materials and craftsmanship to ensure that the building is timeless. Although this approach will increase costs, it can keep the building in good condition for the next 20 to 30 years.

                            
Pavilion Sestig是一座坐落于比利时德勒的极具历史意义的现代主义混凝土建筑杰作。
在材质运用上,Sestig既保留了对混凝土的偏爱,又善于结合天然石材的有机美感,在粗犷中融入奢华与舒适。Tournemenne则擅长通过细致的空间质感处理、色彩搭配和色调调控来营造独特的空间氛围。在帕森式极简主义盛行的时代背景下,二人共同开创了融合感性元素、丰富色彩、奢华质感与建筑结构线条的当代优雅风格,使纯净的建筑空间焕发出新的生命力。
In terms of material application, Sestig not only retains his preference for concrete, but is also good at combining the organic beauty of natural stone, integrating luxury and comfort into the roughness. Tournemenne is good at creating a unique spatial atmosphere through meticulous spatial texture processing, color matching and tone control. In the context of the era of Parsons minimalism, the two jointly created a contemporary elegant style that combines sensual elements, rich colors, luxurious textures and architectural structural lines, giving the pure architectural space new vitality.

                            
通过改造为富有建筑感的起伏地景,营造出建筑悬浮于绿茵之上的独特视觉效果。
在对原混凝土建筑进行改造时,设计团队采取了审慎的改造策略。建筑主体保留了原始简练的矩形体块与圆角造型,使中央露天庭院的布局得以完整保留。并且,还将原本平坦的草坪改造为富有建筑感的起伏地景,使整座建筑呈现出悬浮于绿茵之上的视觉效果,实现了建筑形态与自然环境的有机融合。
When renovating the original concrete building, the design team adopted a prudent renovation strategy. The main body of the building retains the original concise rectangular block and rounded corner shape, so that the layout of the central open-air courtyard can be completely preserved. In addition, the originally flat lawn was transformed into an undulating landscape with an architectural sense, so that the entire building presents a visual effect of floating above the green grass, realizing the organic integration of architectural form and natural environment.

                            

                            
Pavilion Sestig的主要功能区域包括工作区与生活区,均设在首层空间。设计团队通过多项细节改造强化了建筑的粗野主义特征:选用现代风格的窗框替换原有构件,拆除过时的地毯,铺设浅灰色天然石材地面,这种材质不仅在开放空间中自然划分出不同功能区域,其温润的质感更柔化了极简主义的线条,为空间增添自然气息。这些材料既保留了建筑原有的粗犷特质,又营造出更加纯粹简约的现代室内氛围。
The main functional areas of the building include work areas and living areas, both of which are located on the first floor. The design team strengthened the brutalist characteristics of the building through a number of detailed renovations: modern window frames were selected to replace the original components, outdated carpets were removed, and light gray natural stone floors were laid. This material not only naturally divides different functional areas in the open space, but its warm texture softens the minimalist lines and adds a natural atmosphere to the space. These materials not only retain the original rough characteristics of the building, but also create a more pure and simple modern interior atmosphere.
接待区通过下沉式布局营造出立体空
间层次,展现出独特的空间韵
律。
玄关区域的设计别具一格,The Situation Room接待区采用下沉式设计打造出丰富的空间层次感。设计师还将原先用于保护艺术品的黑色窗框更换为通透的玻璃幕墙,不仅实现了“将自然引入室内”的设计构想,更将花园中精心打造的地景山丘纳入视野。
The design of the entrance area is unique, and the reception area of The Situation Room adopts a sunken design to create a rich sense of spatial hierarchy. The designer also replaced the black window frames originally used to protect the artworks with transparent glass curtain walls, which not only realized the design concept of bringing nature into the room, but also included the carefully crafted landscape hills in the garden.

                            
采用全玻璃幕墙替代原有黑色窗框,实现室内外景观的自然交融。
玄关处还可通向画廊空间,精心设计的天窗洒落的自然光线笼罩着Zaha Hadid设计的Moraine沙发和Sol LeWitt于1972年创作的巨型铅笔壁画(3×8米)。整个空间巧妙融合艺术展示与自然光影,营造出独特的视觉体验。
The entrance also leads to the gallery space, where natural light from the carefully designed skylight shrouds the Moraine sofa designed by Zaha Hadid and the giant pencil mural (3×8 meters) created by Sol LeWitt in 1972. The entire space cleverly combines art display with natural light and shadow to create a unique visual experience.

                            
天窗引入的自然光线与左侧Zaha Hadid设计的Moraine沙发交相辉映。
客厅空间展现了Glenn Sestig独特的设计品位,中央区域摆放着Carlo Scarpa设计的两把经典沙发,以及陈列着一对1950年代意大利量产的混凝土座椅(设计师已不可考),搭配内置专业低音炮系统的定制咖啡桌,完美融合实用功能与音响体验。
The living room space shows Glenn Sestigs unique design taste. The central area is filled with two classic sofas designed by Carlo Scarpa, and a pair of mass-produced concrete chairs in Italy in the 1950s (the designer is no longer available), paired with a custom coffee table with a built-in professional subwoofer system, perfectly integrating practical functions and audio experience.
中间一对1950年代意大利量产的混凝土座椅为客厅增添了历史质感与艺术气息。

                            

                            

                            

                            
定制的咖啡桌内置专业音响系统,实现了家具与音乐的完美结合。
厨房区域保留了原始的转角布局,特别定制了精工打造的五金配件,其中水龙头设计尤为考究,而相邻的餐厅也延续了相同样设计语言。
The kitchen area retains the original corner layout, and specially customized hardware accessories, among which the faucet design is particularly exquisite, and the adjacent dining room also continues the same design language.

                            
厨房保留了原始转角结构,搭配精心打造的五金配件,在传统布局中融入现代设计细节。
空间内还陈列着多件Sestig亲自设计的家具作品,包括造型独特的灯具、座椅以及最新家居系列的玻璃钟罩。作为资深收藏家,Sestig精心挑选的藏品遍布整个住宅,就像是走廊区域则安置着Oscar Niemeyer设计的标志性长凳,每件作品都体现了其对建筑大师经典设计的深刻理解与独到眼光。
The space also displays a number of furniture pieces designed by Sestig himself, including unique lamps, chairs and glass bell jars from the latest home collection. As a senior collector, Sestigs carefully selected collections are spread throughout the house, such as the iconic bench designed by Oscar Niemeyer in the corridor area. Each piece reflects his deep understanding and unique vision of the classic design of the architectural master.

                            

                            
Sestig收藏的20世纪30年代邮局原装木凳,以简洁的线条和实用为设计亮点。

                            
中央庭院经过Glenn Sestig的精心改造后,呈现出简约现代的设计风格。新种植的乔木和独特的悬浮混凝土楼梯为主要特色,楼梯向上延直通接屋顶露台。这个悬浮楼梯是Glenn Sestig最具代表性的改造设计,其最大特点是楼梯完全独立,不接触墙面,可以避免任何钻孔或损伤。Sestig在设计时特别注重保护建筑原貌,既满足了日常使用需求,又完整保留了建筑的历史风貌,体现出设计师对既有建筑的尊重与创新并重的专业理念。
After Glenn Sestigs careful renovation, the central courtyard presents a simple and modern design style. The main features are newly planted trees and a unique suspended concrete staircase that extends up to the roof terrace. This suspended staircase is Glenn Sestigs most representative renovation design. Its biggest feature is that the staircase is completely independent and does not touch the wall, which can avoid any drilling or damage. Sestig paid special attention to protecting the original appearance of the building when designing it, which not only meets the needs of daily use, but also fully preserves the historical style of the building, reflecting the designers professional concept of respecting and innovating existing buildings.

                            
悬浮混凝土楼梯以简约的造型向上延伸直达屋顶露台,展现出极具张力的空间设计。

                            

                            

                            
沿建筑一侧延伸的办公套间既是Glenn Sestig接待客户、展示方案的场所,也是他与Bernard Tournemenne日常居住的空间。这个多功能区域完美诠释了Sestig的建筑理念,既满足生活需求,又成为其设计思想的最佳展示平台。
The office suite extending along one side of the building is not only a place for Glenn Sestig to receive clients and present plans, but also a space for him and Bernard Tournemenne to live in on a daily basis. This multifunctional area perfectly interprets Sestigs architectural concept, not only meeting the needs of life, but also becoming the best platform for displaying his design ideas.

                            

                            
办公套间兼具商务与生活双重功能,呈现了工作即生活的设计理念。

                            

                            
Pavilion Sestig整栋建筑仅设置了一间位于转角的卧室套房,空间以一张宽大的双人床为主体,床头搭配着设计师Laurence Leertouwer创作的雕塑感灯具,简约而富有艺术气息。
Pavilion Sestig has only one bedroom suite located in the corner of the entire building. The space is dominated by a large double bed, and the head of the bed is matched with sculptural lamps created by designer Laurence Leertouwer, which is simple and artistic.

                            
而原本的书房空间则被改造成了功能完备的衣帽间,定制衣柜中整齐陈列着Glenn Sestig珍藏的Raf Simons和Matthieu Blazy设计的Bottega Veneta服饰系列。
The original study space has been transformed into a fully functional cloakroom, and the custom wardrobe neatly displays Glenn Sestigs collection of Bottega Veneta clothing designed by Raf Simons and Matthieu Blazy.

                            

                            
在艺术品选择上,住宅以简洁的线条和考究的布局呈现出独特气质。Glenn Sestig更偏爱Guy Bareff和Faustino Aizkorbe的雕塑作品,而非传统大幅画作。他将这些心爱之物精心布置成富有层次感的艺术陈列。同时藏品类型丰富多样,Gio Ponti设计的装饰瓷砖、1970年代意大利品牌Up-Up出品的石灰华碗、Alexander McQueen的迷你皮革骷髅手包等都被巧妙安置在显要位置。就连使用过的Tom Ford香薰蜡烛空罐也被创意地改造成床头花器。这种陈列方式展现出明确的设计主张——每个物品的位置一经确定就不再变动。
In terms of the selection of artworks, the residence presents a unique temperament with simple lines and sophisticated layout. Glenn Sestig prefers sculptures by Guy Bareff and Faustino Aizkorbe rather than traditional large paintings. He carefully arranges these beloved objects into a layered art display. At the same time, the collection is rich and diverse, with decorative tiles designed by Gio Ponti, travertine bowls produced by Italian brand Up-Up in the 1970s, and Alexander McQueens mini leather skull handbags, all cleverly placed in prominent positions. Even the empty Tom Ford scented candle jars have been creatively transformed into bedside flower vases. This display method shows a clear design proposition - the position of each item is determined and will not be changed.

                            
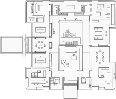
平面图 ©
Glenn Sestig Architects
项目名称 |
Pavilion Sestig
项目地点 |
杜尔勒, 圣马滕斯-拉特姆, 比利时
设计时间 |
2019年
项目面积 |
1000平方米
设计单位 |
Glenn Sestig Architects
主创设计 |
Glenn Sestig、Bernard Tournemenne
摄 影 师 |
Valerie Sadoun、Jean-Pierre Gabriel

                            

                            
Glenn Sestig
1997年,Glenn Sestig在家乡Ghent创立同名设计事务所,开启了他创作生涯中一系列杰作的序幕。其作品涵盖住宅、商业及文化建筑项目,兼及产品设计,足迹遍布比利时国内外。每件作品皆以从容姿态与精准细节脱颖而出,这位比利时建筑师最擅长以举重若轻的方式,呈现令人过目难忘的精致设计。Sestig毕业于安特卫普著名的亨利·范德维尔德学院,在成立个人工作室前曾与多位设计师、建筑师及艺术家合作。这种跨学科与开放精神延续至其独立执业时期,亦体现在与客户的合作中。正因如此,时尚设计师Raf Simons、Pieter Mulier等杰出创意人士纷纷慕名而来,委托他进行设计创作。
他的设计哲学崇尚内敛的空间奢华、宁静纯粹的形态、材质的本真表达,以及极简主义与现代主义的影响。比利时20世纪建筑遗产、Sestig的环球旅行经历,以及超越建筑学科界限的文化洞察力,共同塑造其独特的设计语言。这些元素界定了Sestig的创作轨迹与丰厚作品集,在功能与艺术之间实现了精妙的平衡。

                            

                            

                            

                            
   

采集分享

举报

火星狐的好伙伴

什么也没写

511 作品/ 0 人气

  • 别默默的看了,快登录帮我评论一下吧!:)

    注册 登录

    更多评论

    推荐作品


    相关文章

    下载

    加入到画夹管理

    添加画夹

    提示

    右键保存、高清大图仅支持VIP会员
    名师作品集【专享】
    全网名师最多、更新最快、作品最全
    作品库【无限查阅、一键下载】
    全球最大室内作品库,超33万部
    精品资料【下载】
    全年精品资料更新超1000部
    灵感搜索【原图下载】
    中文搜索全球顶尖案例灵感图
    设计师生活馆【内购价】
    5大电商平台官方合作,专享内购价
    CAD库【模型下载】
    cad单体模型库精准搜索查找下载
    免广告打扰【屏蔽】
    屏蔽全站广告,享受纯净体验
    3D模型【送199币值199元】
    分享全网最新精品3D模型
    名师与资料完善后,价格涨至699元/年