北京国子监失物招领家具店 2017 06 25P(14M) 青山周平

2020-09-17 18:12

                            

                            

                            

                            

                            

                            

                            

                            

                            

                            

                            

                            

                            

                            

                            

                            

                            

                            

                            

                            

                            

                            

                            

                            

                            
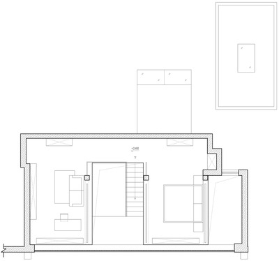
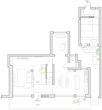
北京国子监失物招领家具店 / 建筑设计事务所回归原点,回归生活,历史街区中朴素自然的家具品牌店。项目是为失物招领家具店在北京国子监街�T店的改造。此次改造希望突破传统店铺的空间模式,引入“家”的概念――现代都市中 越来越多的人选择独居生活,家的概念逐渐从每个家庭剥离出来,向城市的公共空间中蔓延。在这种背景下,城市的商业空间正逐渐成为城市居民的另一个家。此次改造希望在胡同中为人们营造 一个公共的“家”,唤醒人们对家最初的记忆和对未来生活的憧 憬,连接人与人,人与胡同的周遭共生。改造基本保留了传统北京胡同建筑的木结构梁柱,并做了阁楼的加建。入口的室内庭院作为整个空间布局的中心,其他功能区围 绕着庭院分布,被划分成餐厅,客厅,书房,卧室等不同的家的基本空间,形成回字形布局,与传统四合院布局方式相同。在材质选择上,地板,墙壁,天花,家具等都使用了朴素的自然材质,忠实于材料天然的真实的质感,最大程度的减少人工的修饰加工,带给人一种粗粝又温暖的感受。家的样貌在胡同中原本呈现出来,也呼应着失物招领倡导的回归原点回归生活的品牌精神。项目名称:失物招领国子监一店改造 项目所在地:北京市西城区国子监街 项目类型:店铺 建筑师:青山周平,藤井洋子,唐静静,刘凌子 / 建筑设计事务所 规模:二层 总建筑面积:120平米 设计周期: �C  施工周期: �C  摄影师:星野裕也108647109166

                    

举报

Kimberley

什么也没写

17230 作品/ 0 人气

  • 别默默的看了,快登录帮我评论一下吧!:)

    注册 登录

    更多评论

    推荐作品


    相关文章

    下载

    加入到画夹管理

    添加画夹

    提示

    右键保存、高清大图仅支持VIP会员
    名师作品集【专享】
    全网名师最多、更新最快、作品最全
    作品库【无限查阅、一键下载】
    全球最大室内作品库,超33万部
    精品资料【下载】
    全年精品资料更新超1000部
    灵感搜索【原图下载】
    中文搜索全球顶尖案例灵感图
    设计师生活馆【内购价】
    5大电商平台官方合作,专享内购价
    CAD库【模型下载】
    cad单体模型库精准搜索查找下载
    免广告打扰【屏蔽】
    屏蔽全站广告,享受纯净体验
    3D模型【送199币值199元】
    分享全网最新精品3D模型
    名师与资料完善后,价格涨至699元/年