Ocasa JENDRETZKI

2012-10-31 01:00
架构师提供的文本描述。这是对Ulrich Franzen杰作的重新设想,对材料进行了精巧的更新,并重新配置了它的用途,将其应用于航运公司的公司总部。
Text description provided by the architects. This re-imagining of an Ulrich Franzen masterpiece, delicately updates materials, and reconfigures its use adapting it for a corporate headquarters of a shipping company. 
 © Pablo Corradi
巴勃罗·科拉迪
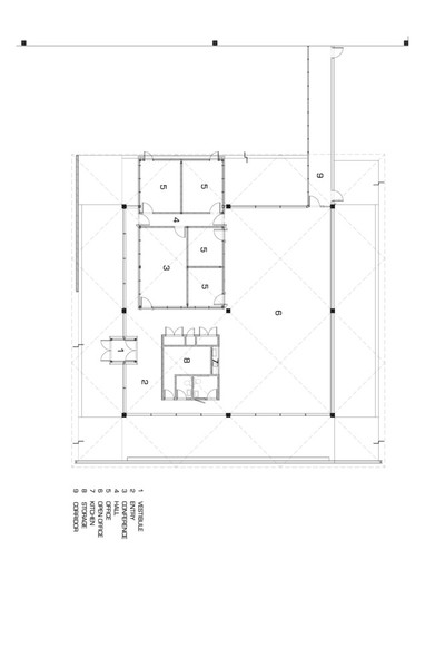
各个空间的划分产生了卷的创建,这些卷的位置足够遥远,因此它的原始特征仍然是整体的主要特征。使用木百叶窗覆层提供了隐私和温暖,否则立体式办公环境。
The division of the individual spaces generates the creation of volumes stand distant enough to structure so that its original features are still primary to the whole. The use of wood louver cladding provides for privacy and warmth to an otherwise steril office environment.
 © Pablo Corradi
巴勃罗·科拉迪
 
 
 
 
 
 
 
 
 
 
 
 
 
 
 
 
 
 
 
 
 
 
 
 
 
 
 

                    

举报

设计的设

什么也没写

1767 作品/ 0 人气

  • 别默默的看了,快登录帮我评论一下吧!:)

    注册 登录

    更多评论

    推荐作品


    相关文章

    下载

    加入到画夹管理

    添加画夹

    提示

    右键保存、高清大图仅支持VIP会员
    名师作品集【专享】
    全网名师最多、更新最快、作品最全
    作品库【无限查阅、一键下载】
    全球最大室内作品库,超33万部
    精品资料【下载】
    全年精品资料更新超1000部
    灵感搜索【原图下载】
    中文搜索全球顶尖案例灵感图
    设计师生活馆【内购价】
    5大电商平台官方合作,专享内购价
    CAD库【模型下载】
    cad单体模型库精准搜索查找下载
    免广告打扰【屏蔽】
    屏蔽全站广告,享受纯净体验
    3D模型【送199币值199元】
    分享全网最新精品3D模型
    名师与资料完善后,价格涨至699元/年