Grecco Building Arzubialde Arquitectos

2013-03-26 00:00
架构师提供的文本描述。帕萨吉·米德尔顿,罗萨里奥市中心的一条狭窄的小巷,是我们的小公寓楼的所在地。一楼是为停车而设计的,六套两居室公寓分布在一楼、二楼和三楼。
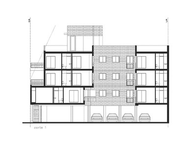
Text description provided by the architects. Pasaje Middleton, a narrow alleyway in the center of the city of Rosario, is the site of our small apartment building. The ground floor is designed for parking, and six two-bedroom apartments are distributed in first, second and third floors.
 © Walter G. Salcedo
C.Walter G.Salcedo
这个体积是在一个突然而又非常短的设计过程中形成的,在这个过程中,委员会经历了一些实质性的改变:一楼的零售用地变成了停车场,四套公寓的佣金变成了六套公寓的一份。考虑到最佳方向的搜索和建筑规范(从某一高度开始的房地产线的最小距离,最小的庭院面积)。
The volume was shaped during an abrupt and very short design process, during which the commission suffered some substantial alterations: an area on the ground floor intended for retail became parking, and a commission for four apartments became one for six. The search for the best orientations and the building code (minimum distance from property line beginning at a certain height, minimum courtyard area) were taken into account.
 © Walter G. Salcedo
C.Walter G.Salcedo
为了尽可能地实现地面平面图的通用性,底层结构采用钢筋混凝土梁和钢柱进行设计。
In order to achieve an open ground plan as versatile as possible, the structure on the ground floor was designed with reinforced concrete beams and steel columns.
 © Walter G. Salcedo
C.Walter G.Salcedo
其余楼面采用承重砖、空心砖砌体,由18x18x33厘米的砖块组成。该设计避免了独立结构的模板、混凝土浇筑和养护,缩短了施工周期。
The remaining floors were designed with load bearing, hollow brick masonry, comprised of bricks 18x18x33 centimeters. This design avoided formwork, concrete pouring and curing for an independent structure, which reduced the construction runtime.
 © Walter G. Salcedo
C.Walter G.Salcedo
作为墙面覆盖物的瓷砖是这一决定的结果;与承重陶瓷砖一起工作,这是一种需要修整的技术。
The tiles used as wall coverings are a consequence of this decision; to work with load bearing ceramic bricks, a technique which requires a finish.
 © Walter G. Salcedo
C.Walter G.Salcedo
因此,完成本身就是一个实验。它对三个变量作出了反应:
The finish is thus presented as an experiment in itself. It responds to three variables:
 © Walter G. Salcedo
C.Walter G.Salcedo
向表面提供纹理,使体积有颜色,用含有颜色的材料来解决这些变量,以避免维护。
To offer a texture to the surface To give color to the volume To solve these variables with a material that contains color in its mass, to avoid maintenance.
 
 
 
 
 
 
 
 
 
 
 
 
 
 
 
 
 
 
 
 
 

                    

举报

有方主页君

什么也没写

1756 作品/ 0 人气

  • 别默默的看了,快登录帮我评论一下吧!:)

    注册 登录

    更多评论

    推荐作品


    相关文章

    下载

    加入到画夹管理

    添加画夹

    提示

    右键保存、高清大图仅支持VIP会员
    名师作品集【专享】
    全网名师最多、更新最快、作品最全
    作品库【无限查阅、一键下载】
    全球最大室内作品库,超33万部
    精品资料【下载】
    全年精品资料更新超1000部
    灵感搜索【原图下载】
    中文搜索全球顶尖案例灵感图
    设计师生活馆【内购价】
    5大电商平台官方合作,专享内购价
    CAD库【模型下载】
    cad单体模型库精准搜索查找下载
    免广告打扰【屏蔽】
    屏蔽全站广告,享受纯净体验
    3D模型【送199币值199元】
    分享全网最新精品3D模型
    名师与资料完善后,价格涨至699元/年