Academy Of Fine Arts Wroclaw Pracownia Architektury Glowacki

2013-07-24 01:00
架构师提供的文本描述。为艺术家和艺术创造合适的空间是设计的主要问题。解决办法是一个开放的、可利用的、但仍然切实可行的空间。建筑物的透明度是为设计过程、艺术展览和与城市入侵者接触创造空间的关键解决方案。
Text description provided by the architects. Creating proper space for artists and art was the main issue of the design. The solution is an open and accessible yet still practical space. Transparency of the building is the key solution for creating space for design process, art exhibitions and contact with urban trespassers.
 Courtesy of Pracownia Architektury Glowacki
Pracownia Architektury Glowacki提供
新的建筑群应该由三个阶段组成-三翼结合,面向现有的花园。发展的第一阶段包括主要实验室、车间和工作场所。这座有着古老树木的花园仍然是开发和邻近地区的焦点。与新建筑一起,它们将成为用户和客人的城市避风港,吸引入侵者与艺术家和他们的作品进行互动。
The new complex is supposed to consist of three stages – three wings combined and oriented towards existing garden. First stage of the development houses major laboratories, workshops and workspaces. The garden with its old grown trees remains the focal point of the development and the neighboring area. Together with the new building they are meant to be an urban retreat for both users and guests and attract trespassers to interact with artists and their work.
 Courtesy of Pracownia Architektury Glowacki
Pracownia Architektury Glowacki提供
这座建筑紧邻着特拉古塔街,因此它也是斯波列兹尼广场(plac społeczny)的基石-该地区正在开发成为沃克罗未来的巴斯辛中心。与此同时,它关闭并组织了学院院内的空间,取代和扩大了旧的露天工作室。简单而又富有表现力的建筑隔离了XIXth世纪四分之一的内部庭院和学院的花园。
The building closes up the quarter along Traugutta Street, therefore it is also a cornerstone for the Spoleczny Plaza (Plac Społeczny) – an area that is being developed to become Wroclaw’s future bussines centre. At the same time it closes and organizes space inside the Academy quarter, replacing and expanding old open-air studios. Simple yet expressive body of the building isolates the XIXth century quarter’s inner courtyard and the Academy’s garden.
 Courtesy of Pracownia Architektury Glowacki
Pracownia Architektury Glowacki提供
这栋建筑最裸露的部分-它的画廊,在克拉辛斯基戈街和特拉乌加塔街的交汇处-通过玻璃立面创造了一个独特的机会,可以直接与克罗瓦居民直接接触,从而塑造他们对当代艺术的看法。该画廊是一个内部的,独立的展览空间,可从步行街和内区停车场。在未来,沿着克拉辛斯基戈德街的建筑的整个侧面将配备一个巨大的LED屏幕(在日光下不可见),以供交互式学生项目显示。
The most exposed part of the building – it’s gallery, at the intersection of the Krasinskiego Street and Traugutta Street creates – through a glass facade - unique opportunity of direct contact with the inhabitants of Wroclaw and thus shapes their views on contemporary art. The gallery is an internal, separate exhibition space available from the pedestrian way and the inner quarter parking lot. In the future the whole side facade of the building along Krasinskiego Street will be equipped with a giant LED screen (invisible in daylight) for interactive student projects to be displayed.
 Courtesy of Pracownia Architektury Glowacki
Pracownia Architektury Glowacki提供
拟议中的玻璃立面为一个高艺术工作室提供了最大限度的照明。他们也允许艺术家把工作室的内部与外部的绿地结合起来。整个玻璃正面都是白色的,哑光的,丝网印刷的。厚的,统一的图案在第一个外玻璃层给整个区块的效果,乳白色的印象和柔情。半透明玻璃确保隔音与繁忙的街道,但不限制室内照明。玻璃的细微划分不会干扰轻盈的感觉。
The proposed glass facades provide maximum lighting for deep an high art studios. They also allow artists to integrate interiors of the studios with the outside green space. The entire glass facade is covered with white, matte, screen-printed paste. Thick, unified pattern on the first outside glass layer gives the entire block the effect of a milky impression and tenderness. Semi-transparent glass ensures acoustic isolation from a busy street yet does not limit interior lighting. Subtle divisions of the glass don’t disturb the feeling of lightness.
 Courtesy of Pracownia Architektury Glowacki
Pracownia Architektury Glowacki提供

                            
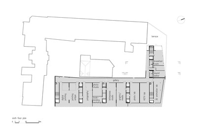
functional layout
每个楼层的空间布置取决于五个混凝土结构竖井(三个疏散楼梯和三个电梯竖井交替排列)、主通风管道和厕所的韵律。地面上每一层的水平通信是由大型走廊提供的,这些走廊可以从电梯和楼梯以及与演播室相关的画廊进入。
The spatial arrangement of each floor is determined by the rhythm of five concrete structural shafts that enclose all vertical circulation (three evacuation staircases and three elevators shafts arranged alternately), main ventilation ducts and toilets. Horizontal communication on each floor above ground is provided by large corridors accessible both from elevators and staircases and galleries associated to studios.
 Courtesy of Pracownia Architektury Glowacki
Pracownia Architektury Glowacki提供
在地下层有一个车库,可以容纳几辆汽车。地板上还有雕塑、陶瓷、设计和玻璃工作室的仓库。一楼被划分为两个独立的部分,通过一个通过大门和入口进入地下停车场。B部分是一个独立的画廊,用来展示学院艺术家的作品。这部分的入口设置在一个简单的拱廊下,在特拉乌加塔和克拉辛斯基戈街道的拐角处。这座建筑的正门从北通向一个宽敞的大厅,同时也是一个展示区。大厅通向贯穿整个大楼的主要走廊,与其西面相邻。一楼6.35米的房子工作室充满了重型机械:窑炉,熔炉,焊工。在建筑物的一侧,有一座阁楼悬挂在地面上,每一层都有两层高的楼层。阁楼(二楼)由一条内到下一层的走廊和一排小房间组成:储藏室、补给室、更衣室、厕所等。加上学院工作人员办公室(每层两间)。这些房间更深,如上所述,悬挂在较低楼层的走廊上。下面的楼层重复低层的交错排列。最后一层六楼由于其工作室的工作性质而部分模糊不清,并且有一个小型自助餐厅,有一个屋顶露台,可以看到Wroclaw。该大楼还设有一个礼堂,可容纳170人,并配有适当的门厅。
On the underground level there is a garage for several vehicles. The floor also houses warehouse areas for sculpture, ceramics, design, and glass studios. The ground floor is divided into two independent parts by a drive through gate and entrance to underground parking. Part B is an independent gallery used to display works of artists from the Academy. The entrance to this part is set under a simple arcade on the corner of Traugutta and Krasinskiego streets. Main entrance to the building leads from the north, through a spacious hall, and also acts as a display area. The hall leads to the main corridor that runs through the entire building adjacent to its west facade. Ground floor of 6.35m houses studios filled with heavy machinery: kilns, furnaces, welders. Above one side of the building there is a mezzanine suspended above ground- and each 2-storey-high floor. The mezzanine (second floor) consists of a corridor with an inside to the lower floor and a row of small rooms: storages, supply rooms, locker rooms, toilets etc. plus offices for the Academy staff (two per floor). These rooms are deeper and, as mentioned above, hung over the gallery-corridor of the lower floor. The following floors repeat the staggered arrangement of the lower ones. The last sixth floor is partly obscured because of the nature of the work executed in its studios and has a small cafeteria with an access to a roof terrace with a view of Wroclaw. The building also houses an auditorium for 170 people with suitable foyer.
 First Floor Plan
一层平面图
 
 
 
 
 
 
 
 
 
 
 
 
 
 
 
 
 
 
 
 
 

                    

举报

KnowYourself

什么也没写

1742 作品/ 0 人气

  • 别默默的看了,快登录帮我评论一下吧!:)

    注册 登录

    更多评论

    推荐作品


    相关文章

    下载

    加入到画夹管理

    添加画夹

    提示

    右键保存、高清大图仅支持VIP会员
    名师作品集【专享】
    全网名师最多、更新最快、作品最全
    作品库【无限查阅、一键下载】
    全球最大室内作品库,超33万部
    精品资料【下载】
    全年精品资料更新超1000部
    灵感搜索【原图下载】
    中文搜索全球顶尖案例灵感图
    设计师生活馆【内购价】
    5大电商平台官方合作,专享内购价
    CAD库【模型下载】
    cad单体模型库精准搜索查找下载
    免广告打扰【屏蔽】
    屏蔽全站广告,享受纯净体验
    3D模型【送199币值199元】
    分享全网最新精品3D模型
    名师与资料完善后,价格涨至699元/年