Winsomere Cres Dorrington Architects - Associates

2013-09-17 01:00
架构师提供的文本描述。一个同时代的家包含了迷人但陈旧的房子,并资本化了所提供的令人叹为观止的景色。
Text description provided by the architects. A contempory home incorporates the charming but time-worn house, and capitalises on the stunning views on offer.
 © Emma-Jane Hetherington
埃玛-简·希特林顿
原来的房子在这个滨水遗址是一个双皮肤砖平房与沃伦一样的房间,很少与前滨连接。客户喜欢传统的细节,现有的房子,但希望最大化的方面和意见。
The original house on this waterfront site was a double-skin brick bungalow with warren-like rooms and little connection with the foreshore. The clients liked the traditional detailing of the existing house but wanted to maximise the aspect and views.
 © Emma-Jane Hetherington
埃玛-简·希特林顿
从哲学上讲,翻修比新建筑更可取,因此,设计的重点是新旧结构的融合。
Philosophically, a renovation was preferred to a new build and as a result, the focus of the design was on an amalgam of the old and new structures.
 © Emma-Jane Hetherington
埃玛-简·希特林顿
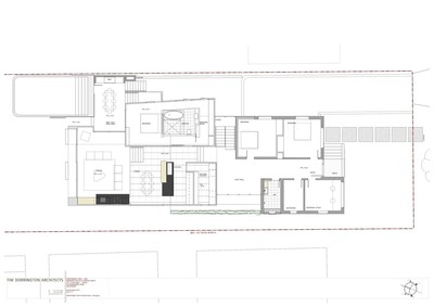
从形式上讲,这座房子由两个现存的街区和两个新的街区组成,由走廊、门厅和楼梯连接起来。现有的大楼包括两间砖砌和内衬的卧室、一间办公室和一间艺术装饰浴室。新的街区包含了在锌包覆的顶部空隙中的生活空间,以及在雪松屏蔽块中的主套间。这些位于较低层的基座上,设有客房、浴室、洗衣房和媒体室。
Formally the house comprises two exisiting and two new blocks, linked by the hallway, foyer and stairs. The existing blocks contain two brick-clad and lined bedrooms, an office and an original art deco bathroom. The new blocks contain the living spaces in a zinc-clad apexed void, and the master suite in a cedar-screened block. These sit on a lower level plinth, which houses a guest bedroom, bathroom, laundry and media room.
 © Emma-Jane Hetherington
埃玛-简·希特林顿
原来的砖块已被剥离回来,并漆成白色,作为旧房子重新呈现的一部分,并通过重新装修的室内门,双层玻璃现有的引灯窗和木材细节进一步加强。
The original brickwork has been stripped back and painted white as part of the re-presentation of the old house, and is further enhanced by the refinished interior doors, double-glazed existing lead-light windows and timber details.
 © Emma-Jane Hetherington
埃玛-简·希特林顿
这所房子是朝向视野和安排的,因此,在从街道进入,有一个自然的进展,从原来的房子,直到新的。从门厅,楼梯通向生活区,不对称的框架景观被展示出来。
The house is directed to the view and is arranged so that, on entry from the street, there is a natural progression from the original house through to the new. From the foyer, stairs lead down to the living areas, and the asymmetrically framed view is revealed.
 
 
 
 
 
 
 
 
 
 
 
 
 
 
 
 
 
 
 
 
 
 
 
 
 
 
 
 
 
 

                    

举报

朱欢尘

什么也没写

1844 作品/ 0 人气

  • 别默默的看了,快登录帮我评论一下吧!:)

    注册 登录

    更多评论

    推荐作品


    相关文章

    下载

    加入到画夹管理

    添加画夹

    提示

    右键保存、高清大图仅支持VIP会员
    名师作品集【专享】
    全网名师最多、更新最快、作品最全
    作品库【无限查阅、一键下载】
    全球最大室内作品库,超33万部
    精品资料【下载】
    全年精品资料更新超1000部
    灵感搜索【原图下载】
    中文搜索全球顶尖案例灵感图
    设计师生活馆【内购价】
    5大电商平台官方合作,专享内购价
    CAD库【模型下载】
    cad单体模型库精准搜索查找下载
    免广告打扰【屏蔽】
    屏蔽全站广告,享受纯净体验
    3D模型【送199币值199元】
    分享全网最新精品3D模型
    名师与资料完善后,价格涨至699元/年