Mannheim Water Treatment Works Motorplan Architektur + Stadtplanung

2014-01-25 01:00
城市规划形势
URBAN PLANNING SITUATION
新的行政和商业大楼,位于伍尔格莱恩区曼海姆东北,由一至十一层的城市开发项目组成,四周环绕着公寓、行政、商业和零售建筑。
The new development of an administrative and commercial building, issituated in the north-east of Mannheim in the Wohlgelegen district within heterogeneous surroundings of one-to-eleven storey urban developments, surrounded by apartment, administrative, commercial and retail buildings.
该网站可从K fertaler Stra e到B38/Friedrich-Ebert Stra e,这是通往曼海姆市中心的东北主要动脉。
The site is accessible from the Käfertaler Straße to the B38/Friedrich-Ebert Straße, the main north-eastern artery to Mannheim City Centre.
 Diagram Site
图位
该地区的特点是通过K fertaler Stra e及其周围街道的重型货车和乘用车造成大量交通。
The area is characterised by heavy traffic caused by heavy goods vehicles and passenger vehicles which pass through Käfertaler Straße and its surrounding streets.
这些行政建筑物是该遗址的一个独特特征,其位置与遗址本身相对,尤其是1926年至1927年历史上列出的汽车磅,位于该地点的东北部,现在是曼海姆废物管理的行政办公室。
The administrative buildings are a distinctive feature of the site and are located opposite to the site itself and, in particular, the historic listed motor vehicle pound dating from 1926-1927 which is to the north-east of the site and is now the administrative offices for Mannheim waste management.
外露砖用于两层“入口”房屋和一层汽车磅的刚性整体建造。这种材料定义了地区,可以在周围地区的许多公寓楼中找到。
Exposed brickwork was used in the construction of the rigid ensemble of the two-storey 'Portal' houses and the one-storey motor vehicle pound. This material defines the district and can be found in many apartment buildings in the surrounding area.
 Diagram Program

                            
历史的合奏影响着这个概念。
The historic ensemble influences the concept.
市政滤水厂和废物管理系统及其仓库和行政大楼的使用,在结构上是非常相似的。因此,可以加强市政工程在其异质环境中的特性。
The usage of the municipal water treatment works and the waste management system with its depot and administrative buildings is structurally very similar. Thus, the identity of the municipal works within its heterogeneous surroundings can be strengthened.
现有的规模和材料结合在一起,加上面向街道的“门户”住宅的类型延续,使人们能够在更重要的高度重新解释新的行政建筑。
The existing scale and materials are incorporated, together with a typological continuation of the 'Portal' houses facing the street, allowing for a reinterpretation of the new administrative building at a far more significant height.
 © Oli Hege
(Oli Hege)
现有的车队停放情况,包括一层商业大厦旁边的停车场-保留在新的一层商业建筑概念中。
The existing vehicle fleet parking situationcomprising parking lots flanked by one-storey commercial buildingsisretained in the new one-storey commercial building concept.
位于K fertaler Stra e的六层行政大楼,不仅是街景内市政水处理工程的新地址,而且还清楚地定义了城市景观,远远超过了B38。
The six-storey administrative building in its stream-lined and impressive position on Käfertaler Straße is not just the new address for the municipal water treatment works within the streetscape, but also clearly defines the cityscape, far beyond the B38.
 © Oli Hege
(Oli Hege)
发展和内部组织
DEVELOPMENT AND INTERNAL ORGANISATION
游客经东北前院到达正门.行政大楼底层设有门厅和礼堂,可用于各种活动和活动。
The visitor arrives at the main entrance via the forecourt to the north-east. A foyer and auditorium can be found on the ground floor of the administrative building and can be combined to be used for various events and functions.
行政区域从门厅进入。两层楼高的规划及建筑署可到达中心楼梯,透过覆盖两层的通讯室,可欣赏K fertaler Stra e的壮丽景色。商业部位于三楼和四楼。这个两层高的交通区域位于大楼的西侧,可以看到赫佐根里得公园和曼海姆市。
The administrative area is accessed from the foyer. The two-storey Planning and Construction Department can be reached viathecentral staircase which, via a communications room covering the two floors, offers splendid views of the Käfertaler Straße. The Commercial Department can be found on the third and fourth floors. The two-storey high communications' area which is to the west of the building offers views of Herzogenriedpark and the City of Mannheim.
从大楼顶层的管理办公室的四面八方都可以看到曼海姆及其周围地区的景色。
Views of Mannheim and its surrounding areas can be seen from all sides of the management offices on the top floor of the building.
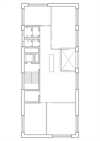
 Fourth Floor Plan
四层平面图
办公室布局灵活,无柱,照明良好,因为混凝土天花板安装在行政大楼狭窄一侧的墙壁上,允许定制空间和使用分配。
The office layout is flexible, column-free and well-lit because the concrete ceilings are mounted to the wall on the narrow side of the administration building, allowing for customised space and use allocation.
作业区域可经仓库到达,可在楼的一层区域内找到,其中包括男女更衣室、工头办公室、社交室和休息室。
The operational area can be reached via the depot and can be found in the one-storey section of the building which contains men and women's changing rooms, foreman's offices, social rooms and break rooms.
东北部K fertalerstra e段的出入和停车情况已得到保留,街道与休息区和游客停车场之间隔开了一堵外墙。
The access and parking situation on Käfertalerstraße in the north-east has been retained.An outer wall separates the street from the break area and visitor parking.
 © Oli Hege
(Oli Hege)
建筑、能源优化和立面
CONSTRUCTION, ENERGY OPTIMISATION AND FACADE
该建筑设计为无柱钢筋混凝土结构,具有加劲芯.28厘米厚的钢筋混凝土天花板允许这一跨度,为平顶露水,以及热质量激活,照明和声学元素的集成。
The building is designed as a column-free reinforced concrete construction with a stiffening core. The 28 cm thick reinforced concrete ceilings allow for this span, for flat ceiling soffits as well as for the integration of thermal mass activation, lighting and acoustic elements.
根据绿色建筑能源标签,新建筑的设计是为了满足能源优化的要求。单回路系统中的加热和冷却元件允许天花板的热质量激活。
The new construction is designed to meet energy optimisation requirements, according to the Green Building energy label. Heating and cooling elements in the single circuit system allow for thermal mass activation of the ceilings.
热交换器可以控制空气通风和抽气。通风管道安装在行政区域的双层,导致60厘米厚的天花板。操作区域的通风和电缆可以在实心天花板下部分看到,部分在悬挂天花板内。
Heat exchangers enable controlled air ventilation and extraction. Ventilation ducts are installed in the double floor in the administrative area, resulting in 60 cm thick ceilings. Ventilation and cables in the operational area can be partially seen under the solid ceiling and are partially within suspended ceilings.
 Cross Section

                            
通过K fertaler Stra e废水下水道的热交换器,从废水系统中的水中回收热量。这个系统还能在夏天冷却。
Heat recovery takes place from water in the waste-water system via a heat exchanger in Käfertaler Straße waste-water sewer. This system also enables cooling in the summer.
一个高水平的用户舒适是通过均匀包围表面温度在内部和一个无风的永久新鲜空气供应。
A high level of user comfort is attained by homogeneous enveloping surface temperatures in the interior and a draught-free permanent fresh air supply.
 © Oli Hege
(Oli Hege)
根据使用和功能,从地板到天花板的玻璃交替在桌面和架子的水平。
Depending on the use and the function, floor-to-ceiling glazing alternates with glazing at table and shelf level.
大的全景窗口和打开的门窗定义了工作场所。打开的门窗通过立面提供了第二条紧急逃生路线,并为用户提供了自然的空气供应。
Large panoramic windows with opening casements define the workplace. The opening casements provide a second emergency escape route via the façade, as well as a natural air supply for the user.
外墙由长圆形熟料面砖组成,保温厚度在25厘米厚的钢筋混凝土墙外面20厘米。窗户是三层玻璃与外部盲装置,以提供遮阳。抽油烟机由一个有效的中央建筑控制系统控制,这取决于太阳的位置和室外温度。这大大减少了夏季从外部进行的额外传热。太阳能可以在冬季使用。
The façade comprises oblong-sized clinker-faced brickwork with an insulation thickness of 20 cm on the outside of the 25cm thickreinforced concrete wall. The windows are triple-glazed with an external blind installation to provide shading from the sun. The raffstores are controlled by an effective central building control system, dependent on the sun's position and the outdoor temperature. This greatly reduces additional heat transfer from outside in the summer months. Solar energy can be used in the winter months.
 Longitudinal Section

                            
为了符合沃尔格莱恩地区许多典型建筑中使用的砌体的特点,选择了裸露砖作为邻近的名单上的建筑物的色调。
Exposed brickwork has been chosen to tone in with the neighbouring listed buildings, in keeping with the character of the masonry used in the many typical buildings which can be found in the Wohlgelegen district.
新建筑的外观在现有建筑的东北一层地区继续存在,以确保向K fertaler Stra e的统一外观。
The façade of the new building is continued in the north-eastern one-storey area of the existing building, serving to ensure a uniform appearance towards Käfertaler Straße.
 
 
 
 
 
 
 
 
 
 
 
 
 
 
 
 

                    

举报

星期五文艺

什么也没写

1856 作品/ 0 人气

  • 别默默的看了,快登录帮我评论一下吧!:)

    注册 登录

    更多评论

    推荐作品


    相关文章

    下载

    加入到画夹管理

    添加画夹

    提示

    右键保存、高清大图仅支持VIP会员
    名师作品集【专享】
    全网名师最多、更新最快、作品最全
    作品库【无限查阅、一键下载】
    全球最大室内作品库,超33万部
    精品资料【下载】
    全年精品资料更新超1000部
    灵感搜索【原图下载】
    中文搜索全球顶尖案例灵感图
    设计师生活馆【内购价】
    5大电商平台官方合作,专享内购价
    CAD库【模型下载】
    cad单体模型库精准搜索查找下载
    免广告打扰【屏蔽】
    屏蔽全站广告,享受纯净体验
    3D模型【送199币值199元】
    分享全网最新精品3D模型
    名师与资料完善后,价格涨至699元/年