Kalorias
2014-03-06 01:00
Courtesy of estúdio AMATAM
Estúdio AMATAM提供
“在现实中,我们工作的颜色很少。这使人们产生了一种错觉,认为他们的人数被放在了应有的位置。“(巴勃罗·毕加索)
“In reality we work with few colors. Which gives the illusion of their number is being put in its rightful place.” (Pablo Picasso)
Courtesy of estúdio AMATAM
Estúdio AMATAM提供
为儿童设计这个空间,引导我们穿越时空,寻找存在于所有生命背景中的不安,这种意象让我们做梦,我们总是在需要我们最幼稚和最有创造力的本质时去寻找。
Designing this space for children led us to a journey through time and space in search of that restlessness that exists in the background of all beings , the imagery that makes us dream and we always seek whenever we need our most childish and creative essence .
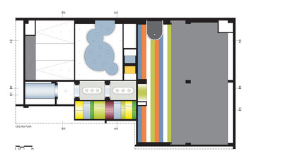
Floor Plan
这个新地方已经存在,但现在已经整修过,这是一个为年轻人创造一个务虚会的机会,他们可以在那里释放他们所有的创造力。为了实现这一点,利用颜色刺激空间和视觉感知是必不可少的,因此色彩心理学已经成为我们在这一干预中所处理的基本假设之一。
This new place, existing but now refurbished, is an opportunity to create a retreat for young people, where they could set free all their creativity. In order to achieve this, it will be essential to use color to stimulate the spatial and visual perception, so the color psychology has become one of the fundamental assumptions we have dealt with in this intervention.
Courtesy of estúdio AMATAM
Estúdio AMATAM提供
现有的空间是里斯本Kalorias健康俱乐部建筑群内的一个区域,由两个大房间和一个大型大厅组成,其最初的功能与公司活动有关。该项目定义了创建一个多用途房间的必要性-规模大、用途广泛,允许不同用途;阅览室-专门用于学术支持、观看电影、阅读书籍和计算机设备的教育使用;视觉艺术室-其主要功能是手工艺和视觉表达;最后是一个更好玩的房间,专门用于娱乐和体育游戏。
The existing space is an area inside the Kalorias Health Club complex in Lisbon, and was defined by two large rooms and a large hall, whose initial function was associated with corporate events. The need to create a multipurpose room was defined in the program – large and versatile, allowing different uses; a reading room – dedicated to academic support, watching films, reading books and educational use of computer equipment; a visual arts room – whose main function would be the crafts and visual expression; and finally a more playful room, dedicated to fun and physical games.
Courtesy of estúdio AMATAM
Estúdio AMATAM提供
根据这些纲领性的需要,对空间进行了调整,保留了大部分现有的结构,但采用了增加新元素的逻辑-是否应该是新的形式、颜色、纹理、图形-最终可以反映出一种象征意义,使进入这一空间的人能够被传送到一个梦幻般的现实中。
Based on these programmatic needs, the spaces were adapted retaining the most of the existing structures, however a logic of adding new elements was adopted – shall it be new forms, colors, textures, graphics – that in the end could reflect a symbolism that would allow who enter into this space to be transported to a dreamlike reality.
Sections: AA - BB
章节:AA-BB
我们对自己提出的挑战导致我们四处游荡,远离通常的建筑思维准则,迫使我们将一些空间平衡的概念去物质化,这样我们才能脱离既定的现实观念,最终让我们能够为孩子们创造一个最有趣和独特的空间。
This challenge that we put on ourselves led us to wander around and get away from the usual architectural thinking guidelines, forcing us to dematerialize some notions of spatial equilibrium, so we could get to such a detachment from the established reality notions, that in the end would allow us to create a space above all playful and distinct for children.
Courtesy of estúdio AMATAM
Estúdio AMATAM提供
每个新设计的房间都有独特的特色,从某种意义上讲,这是一个不同的故事,它是一个目的地。在所有这些中都有新的设计元素,它们与令人惊讶的颜色结合在一起,以一种非常特殊的方式帮助空间的上下文化。走廊是一个统一的空间,与所有房间沟通,并将空间语言和正式语言结合在一起。
Each new designed room has unique features, in a sense tells a different story, it’s a destination per say. In all of them there are new design elements that are combined with surprising colors, helping contextualize the spaces in a very particular way. The corridor is the unifying space that communicates with all rooms and adds together the spatial and formal language.
Courtesy of estúdio AMATAM
Estúdio AMATAM提供
不同的拱门是走廊的主要特色,象征着一条通道,是小公主和小国王的长廊,同时也是不同房间/功能的窗口展示。阅览室,在那里创建了一个小型竞技场,允许孩子们在这个巨大的黑板周围画和写,这也可以成为一个巨大的屏幕,电影和卡通。
The different arches, which are the main distinctive feature of the corridor, symbolize a passage, a promenade for little princesses and small kings, but also serve as a window display for the different rooms/functions. The Reading Room, where was created a small amphitheater, allows children to draw and write around this huge blackboard that also can become a huge screen, for movies and cartoons.
Courtesy of estúdio AMATAM
Estúdio AMATAM提供
视觉艺术厅把曲线和有机形状放在首位,并赋予生机勃勃的色彩以刺激视觉表达。巨大的蓝色天花板上闪烁着白色的灯光,让人想起星空,而穿透的墙壁则揭示了微小的隐藏空间,创造了独特的视觉效果。在游戏室里,绿色的地毯稀释了地面,墙壁反过来又被一组彩色斜坡包裹起来,拆开天花板。这条神奇走廊尽头的最后一个房间被认为是最多才多艺的空间,它被定义为一个开阔的空间和一个以俄罗斯方块色的山和一个小舞台为戏剧特色的有趣的空间。
The Room for Visual Arts gives primacy to curves and organic shapes and vibrant colors to stimulate visual expression. The huge blue ceiling sparkled with white lamps is a reminiscent of a starry sky, while the pierced walls uncover small hiding spaces and create unique visual effects. In the Play Room, the green carpet dilutes the ground with the wall which in turn is wrapped in a set of colored slopes deconstructing the ceiling. The last room at the end of this magical corridor is assumed to be the most versatile space, which is defined as an open area and a playful space that is distinguished by its tetris color mountain and a small stage for theatrics.
Courtesy of estúdio AMATAM
Estúdio AMATAM提供
尽管如此,这个项目最有价值的方面仍然是…。是时候看看不同的孩子是如何适应和利用这个空间作为自己的空间的,是时候观察成人创造的这个梦想世界是如何融入孩子的想象中的。最后,我们希望这个新的空间,以活泼的颜色,不寻常的形状和独特的特点,可以帮助实现儿童的全部潜力。
Nevertheless, the most rewarding aspect of this project is still to come… the time to see how different children adapt and appropriate this space as their own, the time to observe how this dream world created by adults can fit in a child’s imagination. In the end we aspire that this new space that has been reborn with lively colors, unusual shapes and unique features could help achieve the children’s full potential.
Architects Estúdio AMATAM
Location Avenida Duque Loulé 50, 2795, Portugal
Category Renovation
Area 410.0 m2
Project Year 2013

PintereAI








