RD Revnice atelierSAD
2014-05-19 01:00
© Tomas Soucek
.Tomas Soucek
架构师提供的文本描述。它是一种基于矩形平面图的底层物体。房子最明显的部分是由直纹面形成的屋顶。屋面的纵向边缘是弯曲曲线,这决定了屋面的形状。在北面的那一座向上凹陷,长度是它的三分之一。南面曲线在中间凹陷。屋面的形状受内部空间的作用影响。共同居住地区具有较高的地面清除率和更有代表性的特点。在儿童卧室的中间,高度降低,空间更亲密。一般来说,房间的高度是朝向花园的,空间对阳光和绿色开放。南面的漏斗形状是对花园的最大吸收。有屋顶的露台坐落在弯曲的门面前,是门廊风格的一部分,也是房子的一部分。
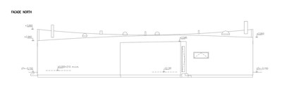
Text description provided by the architects. It is a ground floor object based on rectangular plan. The most visible element of the house is the roof formed by ruled surfaces. Longitudinal edges of the roof are bended curves, which determine the shape. The one in the north facade sag upwards in one third of its length. Curve in southern facade sag down in the middle. The shape of the roof is affected by the function of internal space. The common living areas have a higher ground clearance and a more representative character. In children's bedroom in the middle, the height decreases and the space is more intimate. Generally the height of the rooms grows towards the garden; space opens to sun and green. Funnel shape of the south facade is about absorbing maximum of the garden. Roofed terrace lies in front of bended façade in loggia style it is a part of the house.
这所房子的内部布局清晰而简单。把建筑物和花园连接起来,既是设计的主题,也是布局的主题。走廊把建筑物分成功利主义和生活区。功利化部分位于北面。包括门道、大厅、厕所、储藏室和公用室。这些房间是卧室的隔音屏障,把噪音挡在附近的铁路上。主卧室、儿童房和主浴室位于房屋的南部。厨房的主起居室位于大楼的西南部分.沿着南面的所有房间都有可开放的部分,直接到露台和花园。由于生活区的交叉通风,北面也只有一扇窗户。
The house has a clear and simple internal layout. Connecting the building and the garden is the leitmotif for the design as well as for the disposition. The corridor divides the building to the utilitarian and living area. Utilitarian section is located at the northern facade. Consist of doorway, hall, WC, storage rooms, and utility room. These rooms make a sound barrier for the bedrooms; shield the noise from the nearby railway. Master bedroom, children's room, and main bathroom are located in the south part of the house. The main living room with the kitchen is placed in the south-western part of the building. All rooms along the south facade has openable parts, right to the terrace and the garden. Only one window is also located on the north facade because of cross ventilation of the living area.
© Tomas Soucek
.Tomas Soucek
建筑物的外墙是由落叶松木板和防水胶合板组成的。入口部分的表面由钛锌片制成.屋顶是绿色的,圆形屋顶灯给中央走廊和客厅中央照明,也用于自然通风。
The façades of the building are made of larch planks and waterproof plywood on the south side. Surface of the entrance part is made of the titanium-zinc sheets. Roof is green, round rooflights gives the light to the central corridor and middle of the living room; used also for the natural ventilation.
© Tomas Soucek
.Tomas Soucek
Architects atelierSAD
Location Řevnice, Czech Republic
Category Houses
Architect in Charge MgA. Adam Jirkal, MgA Jaroslav Koza,
Area 164.0 sqm
Project Year 2010
Photographs Tomas Soucek

PintereAI








