Metropolitan Institute of Desing Mauricio González González
2014-08-09 01:00
© Gabriel González
c.Gabriel González
架构师提供的文本描述。大都会设计学院位于拉维琴蒂纳社区,在基多的中北部地区。在一个宽阔的场地内,有一座建在五十年代的房子,而周围的几座建筑则是在不同的时间建造的,以使学生的身体持续增长。因此,建筑的质量和价值因建筑而异。因此,我们的建议是给出秩序和等级,统一新旧建筑的建筑语言。
Text description provided by the architects. The Metropolitan Institute of Design is located on La Vicentina neighborhood, at the north central area of Quito. Within a wide site there is a house built on the fifty’s and several buildings around built on different times in order to give capacity to the continuing student body growth. As a result, the architectonical quality and value of the constructions varies from one to another. Therefore, the proposal is to give order and hierarchy, and to unify the architectural language of both old and new buildings.
© Gabriel González
c.Gabriel González
设计原则。
Design principles.
在研究了现有建筑的功能、日常活动及其与环境的关系等方面的实际情况后,得出的结论是保持和尊重现有建筑的多样性,并对分析的各个方面作出全面的回应。从这一点出发,该建议的核心思想是通过创建新的区域和层次结构来明确现有建筑的建筑空间,以指导校园周围的用户(学生、工作人员和游客)。因此,决定一方面尊重和(或)回收现有要素(建筑物、植被、活动、功能流等),另一方面创造和使用一种复杂的统一建筑语言,为专门从事“设计活动”的研究所提供身份。
After studying the actual situation of the existing buildings as of their functionality, everyday activity and the institute relation with its context; the conclusion was to keep and respect its diversity and a comprehensive response to every analyzed aspect. From this point, the key idea of the proposal is to clarify the architectural space of the existing buildings by the creation of new areas and constructions conducted by hierarchy in order to guide the users (students, staff and visitors) around the campus. Therefore, it was decided to respect and/or recycle the existing elements (buildings, vegetation, activities, functional flows, etc) on one hand, and to create and use a complex unifier architectural language that provides identity to an Institute dedicated to “designing activities” on the other.
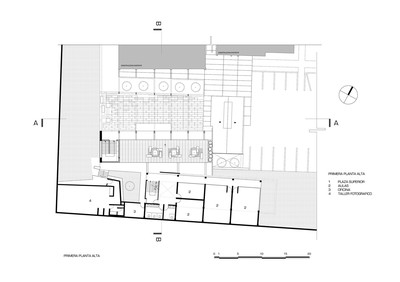
Ground Floor Plan
The Proposal
第一步是消除几个一层建筑。这些临时建筑中的一些变成了病态的赋予原来的房屋,其建筑价值是要保存,而另一些窒息周围的空间,使复杂的空间难以理解。相反,它建议创建两个小的覆盖广场。一个广场是救援拱形墙作为进出和分配区域.其他广场更大的是创造主体社会空间的综合体。大广场东邻一座可循环利用的建筑,包括员工餐厅、主厨房、自助餐厅和水柜;北面与其他回收建筑毗邻,设有工业设计车间;南有植被,西侧有教学楼。
The first step was to eliminate several one story constructions. Some of these temporary buildings became pathological impositions to the original house, whose architectural value is to be saved, and others suffocate surrounding space making difficult the spatial comprehension of the complex. Instead, it proposes to create two small covered squares. One square is to rescue an arch-formed wall as the access and distributing area. Other square larger is to create the main social space of the complex. The large square is adjacent on the east to one of the recycled constructions housing the staff dining room, main kitchen, cafeteria, and water closets; on the north with the other recycled construction housing the industrial design workshop; on the south vegetation; and classroom building on the west side.
© Gabriel González
c.Gabriel González
在现有餐厅的第二层,有一个开放的广场,利用自然地形,形成一个聚集的空地和种植新的植被。在广场东侧,有人提出了一个新的两层楼,包括新教室,一个摄影实验室,工作人员办公室,水厕和储藏室。
On the second level over the existing cafeteria there is an open plaza that takes advantage of the natural topography generating a gathering open space and planting new vegetation. Adjacent on the east side of the plaza it is proposed a new two story block containing new classrooms, a photographic laboratory, staff offices, water closets, and storerooms.
© Gabriel González
c.Gabriel González
采用木格、水泥表面结构、金属漆结构、抛光玻璃窗、不同颜色的金属元素、多种墙面材料和地板材料,为建筑周围几层结构的代代相传,在设计的基础上给出了复杂的搜索效果。
The use of wooden lattices, cement-surfaced structure, painted metal structures, polished glass windows, metal elements painted in different colors, several types of wall and floor materials, contributes on the generations of several layers all around the building in order to give the complexity effect searched on the design basis.
Section AA
AA节
Architects Mauricio González González
Location La Vicentina, Quito, Ecuador
Category Educational Architecture
Area 1150.0 sqm
Project Year 2014
Photographs Gabriel González

PintereAI








