Oak Pass Guest Walker Workshop
2014-11-13 01:00
架构师提供的文本描述。这间两间卧室的宾馆坐落在一座山脊上,林中有120多棵海岸的橡树。
Text description provided by the architects. This two bedroom guesthouse sits along a ridge in a grove of over 120 coast live oak trees.
© Nicholas Alan Cope
(尼古拉斯·艾伦·科普)
该建筑利用一个较小的足迹和高度,以最大限度地全景峡谷景观,同时加强与树的联系在下面。
The building utilizes a small footprint and height to maximize panoramic canyon views while strengthening its connection with the trees below.
© Nicholas Alan Cope
(尼古拉斯·艾伦·科普)
一个现有的谷仓被广泛地改造,作为一个客厅和音乐会场地,最多可容纳80名客人。
An existing barn was rehabbed extensively and functions as both a living room and a concert venue for up to eighty guests.
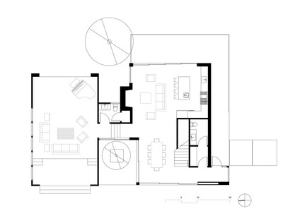
First Floor Plan
一层平面图
上面的地板被防火的木材覆盖,在浮动体积的相对角落有卧室。
The upper floor is clad in fire-resistant wood and has bedrooms at opposite corners of the floating volume.
© Nicholas Alan Cope
(尼古拉斯·艾伦·科普)
Architects Walker Workshop
Location Beverly Hills, United States
Category Adaptive Reuse
Area 2650.0 ft2
Project Year 2013
Photographs Nicholas Alan Cope

PintereAI








