Cantareira Building Eduardo Souto de Moura
2015-07-23 15:00
© Luis Ferreira Alves
路易斯·费雷拉·阿尔维斯
架构师提供的文本描述。整个建筑的外部设计都强调了组成它的不同计划的通常重叠。
Text description provided by the architects. The building highlights throughout its exterior design the usual overlap of the different plans that compose it.
© Luis Ferreira Alves
路易斯·费雷拉·阿尔维斯
这种不同水平的叠加是通过四个面的交替和独立的旋转在南部和东部高地上标记的。
This superposition of different levels is marked on the south and east elevations through an alternative and independent rotation of the four facade planes.
First Floor Plan
一层平面图
为了避免产生一个连续的平面向东,我们提出了一个旋转的计划,导致一个体积的移动,我们认为超过了刚性形象的门式刚屋顶类型。这种轮换也使我们能够在内部利用不同的观点。
To avoid generating a continuous plane eastward, we propose a rotation of the plans causing a movement of volumes that we think overrides the rigid image of the gabled roof typology. This rotation also allows us to take advantage internally of the different views.
© Luis Ferreira Alves
路易斯·费雷拉·阿尔维斯
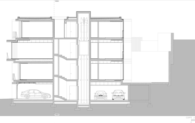
建筑物的发展遵循场地向东的角度,“强迫”身体向北“扭转”,通过楼梯井的垂直开口加强对角分离体积。
The development of the building follows the angle of the site to the east, "forcing" the torsion of the body to the north, reinforcing the diagonal separation of the volume through a vertical opening in the stairwell.
© Luis Ferreira Alves
路易斯·费雷拉·阿尔维斯
Architects Eduardo Souto de Moura
Location Porto, Portugal
Category Apartments
Collaborators António Sérgio Koch, Manuel Vasconcelos, Tiago Figueiredo
Project Area 717.0 m2
Project Year 2013
Photographs Luis Ferreira Alves

PintereAI








