HG House Cristian Hrdalo
2016-06-02 15:00
© Nico Saieh
c.Nico Saieh
架构师提供的文本描述。HG屋是我父母在海滩上的一所房子,对他们来说非常重要的是,这所房子能接待所有的家庭和客人,并且在他们独自一人的时候也能发挥更小的作用。
Text description provided by the architects. HG House is a house on the beach for my parents, for them it was very important that the house could receive all the family and guests and also to function at a reduced size when they were alone.
“当建筑师为亲戚设计时,有一些实验上的自由,但下一次委托你必须通过客户验证你的工作。”
“When an architect design for a relative, there is some experimental freedom, but then the next commission you must validate your work through the client."
© Nico Saieh
c.Nico Saieh
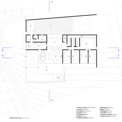
在这些条件下,住宅被认为是客人的区域、服务区和主卧室这三个体积要素之间的相互作用,然后这些不透明的和私人的元素之间的差距就会容纳客厅、餐厅等公共区域,从而产生与外界的连接。主人独处时,接待客人的音量可以关闭。
Under these conditions the house was conceived as the interaction between three volumetric elements: the guest’s area, service area and the master bedroom, then the gaps between these opaque and private elements accommodate the public areas such as the living room, dining room which generate the connection to the outside. The volume that hosts the guests can be closed off when the owners are alone.
© Nico Saieh
c.Nico Saieh
Courtesy of Cristian Hrdalo
克里斯蒂安·赫尔达洛(Cristian Hrdalo)
这片地块有很好的海景,但在前面,它暴露在两条街的角落里,这就是为什么房子保护自己的隐私,不让外面挖洞,而不失去透明度,隐藏主要通道,停车场,同时又不失去与花园、阳光和海景的联系。
The plot has great ocean view but in the front it was exposed in a corner to both streets, which is why the house protects its own privacy from outside burrowing, without losing transparency, hiding the main access, parking lots, without losing the connection with the garden, the sun and sea views.
© Nico Saieh
c.Nico Saieh
这所房子完全是用混凝土砌成的,用的是手工艺品生桌子。由于共管公寓的规定,二楼的体积必须用白色油漆,随着时间的推移和湿度的变绿,所以我们用一种稀释的油漆把它涂上,这样混凝土的质地就能让污垢比无瑕的白色更多。
The house is completely built in concrete with a handcraft raw table cast. Because of a condominium regulations the volume of the second floor has to be painted in white, which with the years and the humidity turn to green, so we paint it with a diluted paint so texture of the concrete allows the dirt more than a flawless white.
© Nico Saieh
c.Nico Saieh
© Nico Saieh
c.Nico Saieh
Architects Cristian Hrdalo
Location Cachagua, Chile
Category Houses
Architect in Charge Cristian Hrdalo
Area 350.0 sqm
Project Year 2010
Photographs Nico Saieh

PintereAI








