Soorim Arts Center IARC Architects
2016-06-30 21:00
© Youngchae Park
杨泽公园
架构师提供的文本描述。Soorim艺术中心位于首尔的洪容,曾是明圣皇后(1851-1895年)的皇家墓葬地。我们将前韩国电影委员会在洪尼翁的总部改造成现在的Soorim艺术中心,包括一个纪念馆、一个艺术画廊和一个音乐厅。以前的建筑大多建在地下,没有足够的自然光和空气。我们翻修的主要目的是将空间暴露在更自然的光线和空气中,并扩大主大厅。现有建筑物的入口大厅高出街道1.2米,只有通过狭窄的楼梯才能进入,而后者又被另一条楼梯挡住。
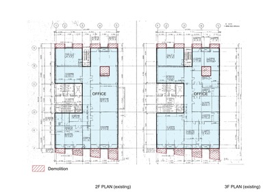
Text description provided by the architects. Soorim Arts Center is located at Hongneung, Seoul, once the royal grave site of Empress Myeonseong(1851-1895). We renovated the former head office of the Korean Film Council at Hongneung into what is now Soorim Arts Center, complete with a memorial hall, an art gallery, and a concert hall. Much of the former structure was built underground; it did not have enough natural light and air. Our main goal for the renovation was to expose the space to more natural light and air, and to enlarge the main hall. The main entrance hall of the existing structure was 1.2 meter above the street level; one could only access it through a narrow stairway, which in turn was obstructed by another staircase.
© Youngchae Park
杨泽公园
于是,我们拆除了额外的楼梯,调整了楼层,并建造了一座桥梁,将空间连接到一个开阔的区域,我们把它变成了Heesoo Kim纪念馆,以纪念Soorim艺术中心的创始人。以前,该空间的主楼层是一个封闭的区域,缺乏通风和自然光线。为了使空间更加立体,我们打开了一段楼板,引入自然光和新鲜空气。此外,我们还在主大厅安装了一部电梯,以便于进入屋顶。有5.5米高的天花板的宽敞的电影开发室被改造成了一个艺术画廊。我们利用不同的楼层,通过使用卡尔沃尔打开南面墙来引入光线,并利用两层移动墙创造了灵活的展览墙。通过有效地缩小维修面积,我们增加了停车场和艺术品的储存面积。
We thus demolished the extra staircase, adjusted the floor levels, and created a bridge to connect the space to an open area, which we turned into Heesoo Kim Memorial Hall, in honor of the founder of Soorim Arts Center. Formerly, the main floor in the space was a closed area with a lack of ventilation and natural light. In order to make the space more three-dimensional, we opened a section of the floor slab to introduce natural light and fresh air. Also, we installed an additional elevator in the main hall to facilitate access to the rooftop. The spacious film development room with a 5.5 meter-high ceiling was converted into an art gallery. We took advantage of the different floor levels, introduced light by opening up the southern wall with the use of Kalwall and created flexible exhibition walls with the use of two layered moving walls. We increased the parking and art storage area by efficiently reducing the size of the maintenance area.
© Youngchae Park
杨泽公园
© Youngchae Park
杨泽公园
设计了一个天窗盒,将光线引入花园,艺术画廊也在花园中起到雕塑元素的作用。办公室位于一楼;三角形图案的玻璃和铝墙的设计各不相同,都是根据它们的方向和暴露在阳光下的情况而设计的。天台上的水箱已改建成天文台,并向公众开放。
A skylight box was created to introduce light into the garden, and art gallery also functions as a sculptural element in the garden. The office sits on the first floor; the triangular patterned glass and aluminum walls were each designed differently based on their direction and exposure to sun light. The water tank on the rooftop was converted into an observatory and is open to public.
© Youngchae Park
杨泽公园
Architects IARC Architects
Location 206-46 Cheongnyangri-dong, Dongdaemun-gu, Seoul, South Korea
Category Visual Arts Center
Architect in Charge Seowon Oh (5pA)
Design Team Seokhong Go, Younggu Kang, Jiwon Lee, Uihun Kim, Yeonhong Ju, Geonwoo Koo, Haein Park
Area 7130.0 m2
Project Year 2014
Photographs Youngchae Park
Manufacturers Loading...

PintereAI








