Jardim Vicentina Urbanization Vigliecca - Associados

2017-02-12 09:00
 © Leonardo Finotti
莱昂纳多·芬诺蒂
架构师提供的文本描述。这是一个城市化和社会住房项目,在Jadim Vicentina,在奥萨斯科市郊,大圣保罗。这个项目是2014年威尼斯双年展巴西馆的一部分。干预面积约为95000平方米,部分城市化,其中很大一部分位于地中海。目前的局势岌岌可危,由一到两层木头或砖石砌成的房屋组成,这些房屋被安置在受山体滑坡、洪水和污染影响的地区。
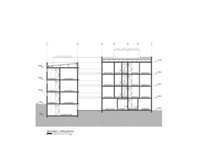
Text description provided by the architects. This is an urbanization and social housing project at Jardim Vicentina, on the outskirts of the city of Osasco, greater São Paulo. This project was part of the Brazil Pavilion at the 2014 Venice Biennale. With an intervention area of approximately 95 thousand m², it was partially urbanized with a large part of it located at a thalweg. The existing situation was precarious, being composed by one or two-storey wood or masonry self-built houses placed in an area subject to landslides, floods and contamination.
 
 
 
 
 
 
该项目提议移除和迁移生活在沿河最关键地区的人,并实施三种不同的类型,沿着沟渠小溪分成一条线,确定两条新的城市战线,一条位于拟议服务公路轴线的每一侧。所有单元都有两间卧室,平均面积为50平方米。为了获得更好的热声性能和较低的表面维护,在裸露的陶瓷砌块中进行了施工。
The project proposed to remove and relocate those living in the most critical areas along the river and to implement three different typologies, grouped in a line along the channeled stream, defining two new urban fronts, one on each side of a proposed services road axis. All units have two bedrooms with an average area of 50 m². Construction was done in exposed ceramic block in order to have a better thermo-acoustic performance and a low maintenance facade.
 © Leonardo Finotti
莱昂纳多·芬诺蒂
 © Leonardo Finotti
莱昂纳多·芬诺蒂
 © Leonardo Finotti
莱昂纳多·芬诺蒂
该项目建立了现有城市结构的连续性,创造了新的空间参照和由新的城市边界界定的可识别的道路要素,从而创造了新的城市条件。它通过完全消除剩余空间来建立一个新的公共空间尺度来评价行人。
The project established a continuity to the existing urban structure, generating new urban conditions by creating a new spatial reference and a recognizable road element, defined by new urban borders. It values pedestrians by establishing a new public space scale by completely eliminating residual spaces.
 © Leonardo Finotti
莱昂纳多·芬诺蒂
 
 
 
 
 
 
 
 
 
 
 
 
 
 
 
 
 
 
 
 
 
 
 
 
 
 
 
 
 
 
 

                    

举报

阿部窄

什么也没写

1791 作品/ 0 人气

  • 别默默的看了,快登录帮我评论一下吧!:)

    注册 登录

    更多评论

    推荐作品


    相关文章

    下载

    加入到画夹管理

    添加画夹

    提示

    右键保存、高清大图仅支持VIP会员
    名师作品集【专享】
    全网名师最多、更新最快、作品最全
    作品库【无限查阅、一键下载】
    全球最大室内作品库,超33万部
    精品资料【下载】
    全年精品资料更新超1000部
    灵感搜索【原图下载】
    中文搜索全球顶尖案例灵感图
    设计师生活馆【内购价】
    5大电商平台官方合作,专享内购价
    CAD库【模型下载】
    cad单体模型库精准搜索查找下载
    免广告打扰【屏蔽】
    屏蔽全站广告,享受纯净体验
    3D模型【送199币值199元】
    分享全网最新精品3D模型
    名师与资料完善后,价格涨至699元/年