Roel House Felipe Assadi + Francisca Pulido + Isaac Broid
2017-03-21 11:00
Cortesía de Cristobal Palma / Estudio Palma
Cortesía de Cristobal Palma/Estudio Palma
架构师提供的文本描述。这座房子按照不断相邻的类型排列,由两个平行的亭子(与街道平行,其中一个是前立面)和连接它们的第三个亭组成“H”方案。最靠近街道的地方包括集体房间、客厅、餐厅和厨房。它的平行位置在网站的后面,连接它们的音量包含卧室。
Text description provided by the architects. The house, following a continuously adjoining typology, is arranged in an "H" scheme of two parallel pavilions (parallel to the street, one of them being the front façade) and a third pavilion that connects them. The one closest to the street contains the collective rooms, living room, dining room and kitchen. Its parallel is located at the back of the site, and the volume that connects them contains the bedr
Cortesía de Cristobal Palma / Estudio Palma
Cortesía de Cristobal Palma/Estudio Palma
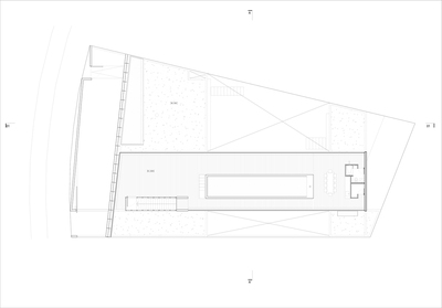
Drawing Felipe Assadi
绘制Felipe Assadi
Cortesía de Cristobal Palma / Estudio Palma
Cortesía de Cristobal Palma/Estudio Palma
“H”是完全悬挂的,支撑在场地的后面(斜坡向下向街道),在围护间形成不同的庭院。
The "H" is completely suspended, supported at the back of the site (the slope descends towards the street) generating different courtyards between the enclosures.
Cortesía de Cristobal Palma / Estudio Palma
Cortesía de Cristobal Palma/Estudio Palma
Cortesía de Cristobal Palma / Estudio Palma
Cortesía de Cristobal Palma/Estudio Palma
房子下面有一个郁郁葱葱的花园,从街道一直延伸到后面。停车场和一个多用途的车间位于“H”下。在屋顶上,我们利用平地的优势来放置露台、花园和游泳池,从这些地方你也可以看到墨西哥城的很大一部分。
A lush garden makes its way underneath the house, from the street towards the back of the site. Parking lots and a multipurpose workshop are located under the "H". On the roof, we took advantage of the flat level in order to place terraces, gardens and a swimming pool, from which you can also see a good part of Me
Cortesía de Cristobal Palma / Estudio Palma
Cortesía de Cristobal Palma/Estudio Palma
Elevations and Sections
标高和截面
Cortesía de Cristobal Palma / Estudio Palma
Cortesía de Cristobal Palma/Estudio Palma
Architects Felipe Assadi, Francisca Pulido, Isaac Broid
Location Mexico City, Mexico
Category Houses
Collaborator Architect Alejandra Araya
Area 560.0 m2
Project Year 2013

PintereAI








