Innovation Center 2.0 SCOPE Architekten
2017-03-31 03:00
架构师提供的文本描述。在JungfernseScope上的一个公开位置上,Scope在现有SAP大楼旁边构建了创新中心2.0。建筑师也负责它的内部设计。
Text description provided by the architects. In an exposed location on Jungfernsee SCOPE built the Innovation Center 2.0 next to existing SAP building. The architects are also responsible for its interior design.
© Zooey Braun
佐伊·布劳恩(Zooey Braun)
创新中心2.0是软件开发的一个特殊场所,也是SAP的一个特殊位置。
The Innovation Center 2.0 is a special place for software development and a special place for SAP.
在这里,软件解决方案正在开发中,敏捷的启动和这一全球领先者的背景。
Here software solutions are being developed with the agility of a start-up and the background of this global leader.
© Zooey Braun
佐伊·布劳恩(Zooey Braun)
为160名员工、来自世界各地的年轻IT人才创造了5,400平方米的吸引人的就业机会。这些工作的重点是促进新的想法,为基于团队的和有趣的思维提供最佳的条件。以此方式,他们激发了创新的工作实践,如设计思维。
Attractive jobs were created on 5,400 square meters for 160 employees, young IT talents from all around the world. These focused on the promotion of fresh ideas and offer best conditions for team-based and playful thinking. In this way they stimulate innovative work practices such as design thinking.
© Zooey Braun
佐伊·布劳恩(Zooey Braun)
在外面,新的,四层玻璃立方体与旋转阳台适应库存,其特点是其令人振奋的混凝土支柱结构具有工业特征,打破玻璃正面在众多的对角线。
On the outside, the new, four-story glass cube adapts with rotating balconies to the inventory and is characterized by its exciting concrete pillars structure with industrial character, which breaks the glass facade in numerous diagonals.
这座建筑就像一个开放的车间大厅,所有的楼层都通过一个跨层的空域连接起来。
The building resembles an open workshop hall in which all floors are interconnected via a cross-story airspace.
© Zooey Braun
佐伊·布劳恩(Zooey Braun)
在建筑物中间是一个封闭的混凝土核心,它接受了建筑物的所有服务和技术特征,如应急楼梯井、电梯、技术基础设施和卫生系统。
In the middle of the building is a closed concrete core that receives all serving and technical features of the building such as the emergency stairwell, the elevator, the technical infrastructure and the sanitary system.
通过正门进入大楼,房间以大空域的形状打开。天花板上安装了一大盏灯,一堵绿色的墙遮住了视野。
Entering the building through the main entrance the room opens up in the shape of a large airspace. A large light installation on the ceiling and a green wall catch the view.
© Zooey Braun
佐伊·布劳恩(Zooey Braun)
在这个空域也可以找到巨大的主要通道。单层楼梯的暴露混凝土,钢和马特黑色水平橡木地板结合在一起的地板。
In this airspace also the huge main access can be found. Single-flight stairs of exposed concrete, steel and matt black levels oak floors combine the floors with each other.
单飞行楼梯结束在不同的深画廊,接受通讯和居住区。
The single-flight stairways end on different deep galleries that receive communication and residence zones.
© Zooey Braun
佐伊·布劳恩(Zooey Braun)
空域及其多样的建筑群说明了将通信作为充满活力的企业文化的重要组成部分的建筑雄心。
The airspace with its diverse compounds illustrates the architectural ambition of making communication an essential part of a vibrant corporate culture.
在底层,咖啡吧、车间、大型设计思考区和会议室都围绕着核心布置。
On the ground floor the coffeebar, the workshop rooms, the large design thinking - area and the meeting rooms are arranged around the core.
© Zooey Braun
佐伊·布劳恩(Zooey Braun)
在这些空间中,灵活和敏捷的工作环境的想法是最明显的。
In these spaces, the idea of a flexible and agile working environment is most evident.
大的白板表面挂在天花板上,可以移动。
Large whiteboard surfaces are hanging from the ceiling and can be moved.
巨大的设计思维空间具有不断变化的特点,使不同规模的多个工作组能够一起工作或为多达200人进行演示。
The great design thinking space is characterized by constant change and enables multiple workgroups in various sizes to work together or to give presentations for up to 200 people.
© Zooey Braun
佐伊·布劳恩(Zooey Braun)
会议室和车间也可以通过灵活的隔断来扩展。所有的家具和看台都在车轮上,并支持灵活工作。
The meeting and workshop rooms are also expandable by flexible partitions. All the furniture and the stands are on wheels and support agile working.
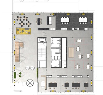
Floor Plan
在上层,办公空间在核心周围呈U形,中间有很大的玻璃隔开。
On the upper floors the office spaces are U-shaped around the core and are separated by large glazing of the atrium.
工作站的设计与底层的空间一样灵活。
The workstations are designed to be as flexible as the spaces on the ground floor.
© Zooey Braun
佐伊·布劳恩(Zooey Braun)
在这里,灵活的工作组也可以由可移动的白板和可滚动的表格组成。
Here flexible working groups can also be assembled by movable whiteboards and scrollable tables.
每层楼的三个工作组周围都是不同大小的会议室和大楼角落的智囊团。
The three working groups on each floor are surrounded by differently sized meeting rooms and think tanks at the corners of the building.
© Zooey Braun
佐伊·布劳恩(Zooey Braun)
微型会议单元-用于电话、两人会议或人事会议的小型隔音区域-完成空间。
Micro meeting cells - small, sound-proof areas for telephone calls, two -man conferences or personnel meetings - complete the space.
材料的混合,包括木材,种植的餐具和皮革座椅在视觉和触觉上符合工业魅力的生混凝土墙,平板地板,可见装置和冷却鳍在天花板上,这也是声学有效的。
The material mix including wood, planted sideboards and leather seats visually and haptically meets the industrial charm of raw concrete walls, screed floors, visible installations and cooling fins on the ceilings, which are also acoustically effective.
© Zooey Braun
佐伊·布劳恩(Zooey Braun)
整洁的气氛是朴素、简约和刺激的同时。
The tidy atmosphere is plain, reduced and stimulating at the same time.
玻璃墙上的视觉保护将功能空间与通信区域分开,并创造了连接和透明度。
Visual protection on glass walls separate functional spaces from communication areas and also create connections and transparency.
© Zooey Braun
佐伊·布劳恩(Zooey Braun)
开放、合作和灵活的整体办法随处可见。
The holistic approach of openness, cooperation and flexibility can be felt everywhere.
在三楼,中庭通往一个更大的通讯区,通过这个区域可以到达建筑物的屋顶露台。
On the third floor, the atrium opens to a larger communication zone, through which the roof terrace of the building can be acessed.
© Zooey Braun
佐伊·布劳恩(Zooey Braun)
除了对丛林及邻近发展区的远见卓识外,在温暖的季节,天台也是先进的工作站区。
In addition to far reaching views over the Jungfernsee and the adjacent development area, the rooftop also serves as advanced workstation area during the warm season.
个人家具,如摇椅,长椅和沙发,鼓励不同的工作技术在这些特区。
Individual furnishings such as swinging seats, benches and sofas encourage different working techniques in these special zones.
© Zooey Braun
佐伊·布劳恩(Zooey Braun)
Architects SCOPE Architekten
Location Konrad-Zuse-Ring 10, 14469 Potsdam, Germany
Category Cultural Center
Architects in Charge Oliver Kettenhofen, Mike Herud
Area 5400.0 m2
Project Year 2016
Manufacturers Loading...

PintereAI








