Corporative Building Claro Chile +arquitectos
2017-05-01 15:00
© Juan Francisco Vargas
胡安·弗朗西斯科·瓦尔加斯(Juan Francisco Vargas)
架构师提供的文本描述。智利克拉洛公司总部设在胡胡拉巴圣地亚哥,由其总办事处、技术领域、赌场、停车场和服务区组成。它是一个由两个不同特点的主体组成的综合体,朝向通路,一座11层的大楼,一座专供公司办公用的大楼,另一座通向工地的背面,一个水平的3层建筑,用于技术领域。这两个物体通过地下停车场产生的体积在地面上连接,将行人与汽车循环分开,通过钢制遮阳器保护行人不受太阳辐射的影响,从而使植物生长,从而减少汽车对办公室不必要的反射,同时也使这一地区的使用更加灵活。
Text description provided by the architects. Claro Chile Headquarters is located in Santiago, Huechuraba, composed by its general offices, technical areas, casino, parking lots and services areas. It is a complex conformed by two bodies of different characteristics, towards to the access road, an 11-level tower destined for corporate offices and to the back of the site, a horizontal 3-level Building for technical areas. Both bodies are connected at ground level by a volume that emerges from the underground parking lots, separating pedestrian traffic from car circulation, protected from solar radiation by steel shaders that allow vegetal growing, which decrease the unwanted reflections of cars towards the offices, and at the same time, allowing more flexibility of uses in this area.
© Juan Francisco Vargas
胡安·弗朗西斯科·瓦尔加斯(Juan Francisco Vargas)
主楼是对墨西哥克拉洛总部的改造,为我国设计的比例不寻常。其结构模型为9X9 MTS。拥有3000平方米的植物。有一个4.40 MTS。板间高度。这是该项目规模的全面变化,以及一座2800人将工作的大楼的施工过程的复杂性,需要有适当尺寸的公用空间供如此多的用户使用。
The main building is an adaptation of the headquarters of CLARO in Mexico, designed with unusual proportions for our country. It has a structural model of 9X9 mts. with plants of 3000 m2. with a 4.40 mts. height between slabs. This is a completly change in the scale of the Project and the complexities of the construction process in a Building which 2800 people will work, demanding common spaces with appropriate dimensions for such a number of users.
Floor Plan
© Juan Francisco Vargas
胡安·弗朗西斯科·瓦尔加斯(Juan Francisco Vargas)
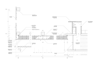
为避免辐射过热,各建筑物的立面均采用高效能玻璃设计,采用丝屏蔽,东面和西面均有太阳能幕保护,由W片组成,采用多孔铝折叠,可自给盖层间的高度,无需中间子结构,实现了内外清晰的视野。
In order to avoid overheating by radiation, the facades of each building were designed with high efficiency performance glass, incorporating silk-screened, covered with solar screen protection in the facades east and west composed of a system of W pieces, folded in perforated aluminum, which are self-supporting to cover the height between floors without the need of intermediate substructures, achieving a clear view between the interior and exterior
© Juan Francisco Vargas
胡安·弗朗西斯科·瓦尔加斯(Juan Francisco Vargas)
有必要强调制造和装配公司在设计和实施外观系统方面的综合工作。
It is necessary to highlight the integrated work between manufacturing and assembly companies for the design and implementation of façade systems.
© Juan Francisco Vargas
胡安·弗朗西斯科·瓦尔加斯(Juan Francisco Vargas)
© Cristián Barahona
(Cristián Barahona)
Architects +arquitectos
Location Huechuraba, Santiago Metropolitan Region, Chile
Category Institutional Buildings
Architect in Charge Brahm, Bonomi, Leturia, Bartolomé
Area 55000.0 m2
Project Year 2014
Photographs Juan Francisco Vargas, Cristián Barahona
Manufacturers Loading...

PintereAI








