Cricket Pitch House Scale Architecture
2017-12-09 20:00
© Brett Boardman
布雷特·博德曼
.jpg) 
                                                                                                                     
                                                            架构师提供的文本描述。板球球场是悉尼东郊北邦迪的独立住所。
Text description provided by the architects. The Cricket Pitch House is a free standing dwelling in North Bondi, in Sydney’s eastern suburbs.
客户的五卧室房子的简介集中在一个花园,适合在后院蟋蟀为日益增长的家庭。
The client’s brief for a five bedroom house is centred on a garden suitable for backyard cricket for the growing family.
Ground floor plan
 
                                                                                                                     
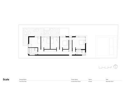
                                                            First floor plan
一楼平面图
 
                                                                                                                     
                                                            这座建筑位于悉尼的一个著名的郊区,它的建筑形式让人想起它周围的倾斜屋顶。屋顶山脊斜向穿过建筑物,形成四个不同的立面,每个立面都对它们的方向作出反应。
Located in a well-established suburban part of Sydney, the building’s form recalls the pitched roofs of its environs. The roof ridge runs diagonally across building, creating four different facades, each responding to their orientation.
© Brett Boardman
布雷特·博德曼
.jpg) 
                                                                                                                     
                                                            房子的线性组织创造了一个朝北的长方形庭院,最大限度地利用太阳能进入房子,同时也形成了后院蟋蟀球场的理想尺寸。
The linear organisation of the house creates a long north-facing side yard that maximises solar access to the house, while also forming the ideal dimensions for a backyard cricket pitch.
© Brett Boardman
布雷特·博德曼
.jpg) 
                                                                                                                     
                                                            细密的面板成品混凝土为书房和入口空间提供了质感和质量,而大木结构玻璃滑动门从餐厅和起居空间一直打开到花园。
Finely detailed board finished concrete provides texture and mass to the study and entry spaces, while large timber framed glass sliding doors open from the dining and living spaces to the garden.
 
                                                                                                                     
                                                            上面的砖块体积被水平的窗户刺破,用涂有油漆的钢围起来,以保护玻璃免受强烈的夏季阳光的照射。
The upper brick volume is punctured by horizontal windows, framed by painted steel surrounds that protect the glass from the intense summer sun.
© Brett Boardman
布雷特·博德曼
.jpg) 
    
                                                                                                                     
                                                            一个轻盈的楼梯空隙使横切的计划,提供方案之间的分离,并表示在正面与一个大的钢垂直窗口。
A light-filled stair void makes a transverse cut through the plan, provides separation between programs and is expressed on the façade with a large steel vertical window.
© Brett Boardman
布雷特·博德曼
.jpg) 
    
                                                                                                                     
                                                            与景观设计师苏·巴恩斯利(Sue Barnsley)密切合作,对屋顶花园、后院草地和土著树林进行了重新设想,以包含有意选择的本地植物区系,以吸引当地特有的鸟类和昆虫。
Working closely with Landscape Architect, Sue Barnsley, the roof garden, backyard meadow and indigenous grove are reimagined to contain native flora purposefully selected to attract birds and insects endemic to the area.
© Brett Boardman
布雷特·博德曼
.jpg) 
    
                                                                                                                     
                                                            .jpg) 
    
                                                                                                                     
                                                            .jpg) 
    
                                                                                                                     
                                                            .jpg) 
    
                                                                                                                     
                                                            .jpg) 
    
                                                                                                                     
                                                            .jpg) 
    
                                                                                                                     
                                                            .jpg) 
    
                                                                                                                     
                                                            .jpg) 
    
                                                                                                                     
                                                            .jpg) 
    
                                                                                                                     
                                                            .jpg) 
    
                                                                                                                     
                                                            .jpg) 
    
                                                                                                                     
                                                            .jpg) 
    
                                                                                                                     
                                                            .jpg) 
    
                                                                                                                     
                                                            .jpg) 
    
                                                                                                                     
                                                             
    
                                                                                                                     
                                                             
    
                                                                                                                     
                                                             
    
                                                                                                                     
                                                             
    
                                                                                                                     
                                                             
    
                                                                                                                     
                                                            Architects Scale Architecture
Location North Bondi, Australia
Lead Architects Matt Chan, Nathan Etherington
Area 237.0 m2
Project Year 2017
Photographs Brett Boardman
Category Houses
Manufacturers Loading...









 
             
                       
                                 
                                 
                                                 
                                             
                                         
                                                                                 
                                                     
                                                     
                                                     
                             
                     
             
                        
                    
 
            
        
