Apartment Refurbishment Aboim Inglez Arquitectos
2018-01-12 09:00
© Ricardo Gonçalves
c.Ricardo Gon alves
架构师提供的文本描述。现有的公寓面积不寻常-长33米,宽7米-没有充分利用其空间,需要充分处理几个特点,例如一条15米长的走廊,昏暗的走廊,许多地方质量差的装饰瓷砖板,以及令人不舒服和过时的浴室。但是,一条将整个公寓统一起来的木铺路显示出了希望,并被用作该项目概念的基石:通过精确的空间变化,颠覆了传统的社会和私人区域分离,让每个组成部分相互流动。
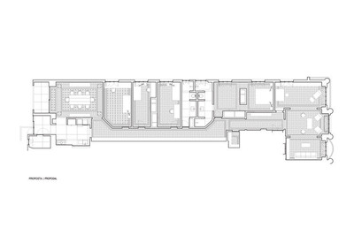
Text description provided by the architects. The existing apartment, of unusual dimensions – thirty three metres long by seven metres wide – presented an underuse of its spaces and several features needed to be addressed adequately, such as a fifteen metre long corridor which was gloomy, poor quality decorative ceramic tile panelling in numerous areas and uncomfortable, outdated bathrooms. But a wood pavement unifying the whole apartment showed promise and was used as the foundation stone to the project’s concept: the subversion of the traditional separation of social and private areas by precise spatial changes, allowing each of its components to flow into each other.
© Ricardo Gonçalves
c.Ricardo Gon alves
这样,干预就重新平衡了现有空间的层次结构。起居室是面向街道的正面,卧室被放置在计划的中央,餐厅和厨房现在可以看到面向内院的地方了。餐厅有了一个阳台,起居室和厨房在视觉上连接起来,而客厅和厨房则有些隐秘,以免被人从不应该看到的地方看到。一些木材人行道被找回,必要时重新设计,并在丢失的地方更换。光被允许在需要它的地方,一些门被拆除,以加强我们的目标的可渗透的空间特征。连接走廊总结了公寓建筑的微妙而完整的变化:安装了一条长凳,在原来的功能空间中增加了住宅的质量。
The intervention thus rebalanced the hierarchy of the existing spaces. The living areas were left to face the street front, bedrooms were placed in the middle of the plan, and dining room and kitchen can now be found facing the inner courtyard. The dining room gained a verandah and the living room and kitchen were made to connect visually, with the latter left somewhat hidden in order not to be perceived from where it shouldn’t. Some of the wood pavements were recovered, redesigned where necessary and replaced where missing. Light was allowed in where it was needed and some doors were removed to reinforce the permeable spatial character that we aimed for. The connecting corridor summarizes the subtle but complete transformation of the apartment’s architecture: a length-long bench was installed adding a dwelling quality to what was formerly an exclusively functional space.
© Ricardo Gonçalves
c.Ricardo Gon alves
Floor Plan
© Ricardo Gonçalves
c.Ricardo Gon alves
很高兴在晚餐时拜访我们的客户,并看着邻近的孩子们从室内庭院到客厅在屋子里流通。人们感觉到,这些条件已经为生命的发生创造了条件。
It is very pleasing to visit our clients over dinner and watch the neighbouring children circulate through the house, from the inner courtyard to the living rooms. One senses that the conditions have been created for life to take place in.
© Ricardo Gonçalves
c.Ricardo Gon alves
Architects Aboim Inglez Arquitectos
Location R. Rodrigo da Fonseca, Lisboa, Portugal
Team Bárbara Vasconcelos, Tiago Pereira
Area 250.0 m2
Project Year 2016
Photographs Ricardo Gonçalves
Category Apartment Interiors

PintereAI








