Siamese Ratchakru Creative Crews
2018-01-30 21:00
© Spaceshift Studio
c.Spaceshift Studio
架构师提供的文本描述。Siamese Ratchakru是一个混合开发项目,由两座塔组成:一个办公室和一个共管公寓。1997年亚洲金融危机期间,房地产市场崩溃。十多年后,仍然有证据表明曼谷周围有废弃的建筑工地,暹罗就是其中之一。2011年,政府发布了一项法案,放弃阻碍这些项目完成的规定,同时又不损害人民的安全。
Text description provided by the architects. Siamese Ratchakru is a mixed development project comprising of two towers; an office and a condominium. During the 1997 Asian financial crisis, the real estate market crashed. More than 10 years later, there were still evidence of abandoned construction sites around Bangkok, Siamese Ratchakru was one of them. In 2011, the government released an act to waive impeding regulations to allow these projects to be completed without compromising people safety.
© Spaceshift Studio
c.Spaceshift Studio
建筑师必须与现有的结构基础,并在批准的建筑足迹和高度。与办公大楼,现有的基础规定了它的位置接近现场边界,从而不允许机会的开口。作为回应,建筑师雕刻成块,允许自然光和通风的多个开口。这种安排为种植箱和阳台提供了机会,使工作空间更具吸引力。为了弥补从街区刻下的缺失面积,重新规划了停车计划,以提高停车效率,从而减少了停车场的面积,从而取代了共管楼面。
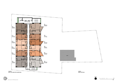
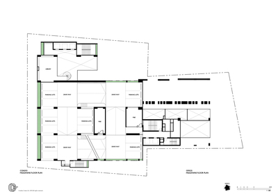
The architect had to work with existing structural foundations and within the approved building footprint and height. With the office tower, existing footing prescribed its position close to the site boundary, thus disallowed opportunities for openings. As a response the architect carved into the block allowing multiple openings for natural light and ventilation. The arrangement afforded the opportunity for planter boxes and balconies leading to more appealing workspaces. In order to compensate for missing area carved from the block, parking is re-planned to be more efficient resulting in a parking floor reduction, thus replaced with a condominium floor.
© Spaceshift Studio
c.Spaceshift Studio
对于共管楼,建筑师提出了悬臂式阳台,因为大多数单位都是小的。阳台朝向城市,远离前面的办公大楼。对指定列位置的限制是为了相对狭窄的配置,因此仔细的规划对于创造最佳的内部环境是必不可少的。这是通过折叠共享墙和调整服务功能来完成的。种植的墙壁从住宅塔的两旁一直延伸下来,隐藏着防火通道,内部种植尽可能多地整合在公共区域;共用设施、甲板和大堂。
For the condominium tower, the architect proposed cantilevered balconies, as the majority of units are small. The balconies are angled to direct views towards the city and away from the office tower in front. Restrictions of the prescribed column positions made for a relatively narrow configuration, and so careful planning was essential to create the best possible internal environment. This was done by folding the shared wall and aligning the service functions. Planted walls run down both edges of the residential tower, concealing fire escapes and internal planting is integrated as much as possible in common areas; shared facilities deck and lobbies.
暹罗是一个例子,说明如何使废弃的建筑恢复活力,使其成为与当今时代有关的理想发展和建筑。
Siamese Ratchakru is an example of how abandoned structures could be revived to become desirable development and architecture relevant to current times.
© Spaceshift Studio
c.Spaceshift Studio
Architects Creative Crews
Location Bangkok, Thailand
Architect in Charge Puiphai Khunawat
Area 29000.0 m2
Project Year 2014
Photographs Spaceshift Studio
Category Office Buildings
Manufacturers Loading...

PintereAI








