Hotel Revier Carlos Martinez Architekten
2018-03-26 02:00
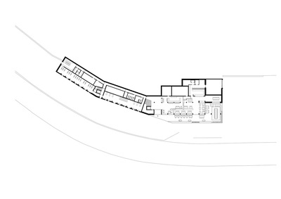
简单豪华自然,正宗和趋势导向。当一家体育酒店被简化为最基本的东西时,一种对生活的自由感和一种非传统的建筑理念被创造出来。这座狭长的建筑坐落在陡峭地形的边缘,背景是横扫的山林。建筑物的两个轻微倾斜的部分沿着海德西的海岸线。这座建筑的前面有一个大厅、酒吧和餐厅,面向索索恩缆车的入口,构成了酒店的公共中心。另有四层楼,共有96间客房,支撑在这个庞大的底层基础之上,这是慷慨规模的冬季运动室和自行车房的所在地。
Simplistic Luxury Natural, authentic and trend-oriented. When a sports hotel is reduced to the bare essentials, a feeling of freedom towards life as well as an unconventional architectural concept is created. The long, narrow building perches on the edge of steep terrain with the sweeping mountain forest in the background. The two lightly angled elements of the building follow the shoreline of the Heidsee. The front of the structure with a lobby, bar, and restaurant faces the entrance to the Rothorn cable car invitingly and forms the communal center of the hotel. An additional four floors with a total of 96 rooms are supported above this massive ground-floor foundation where the generously scaled winter sports room and bicycle room are located.
© Revier Mountain Lodge
雷维尔山阁楼
酒店将山间小屋的氛围与露营车的解放感和船舱的功能结合起来。所有房间都朝西朝水,让人想起大众汽车的形象:湖边的一个公园打开了尾门,让人感觉到了一种自由感。一张大的墙对墙的床和一张从地板到天花板的全景窗,加上通风的翅膀,加深了这种印象。这些房间仅在15平方米的空间内得到优化。天花板,地板和墙壁是由自然的,未完成的胶合板支架,房间隔板和室内装修的模块构成的。
The hotel unites the atmosphere of a mountain chalet with the liberating feeling of a campervan and the functionality of a ship’s cabin. All rooms face West toward the water and bring to mind the image of a VW bus: one park at the lake opens the tailgate and feels a sense of freedom. A large wall-to-wall bed and a floor-to-ceiling panorama window with ventilation wings intensify this impression. The rooms are optimized in the space of just 15m². Ceilings, floors, and walls are constructed in modules of natural, unfinished plywood – supports, room dividers and interior finishing all in one.
© Marc Lins
C.Marc Lins
双壁效应是通过布置彼此相邻的房间而产生的,这也提供了改进的隔音效果。浴室安装在一个多功能的盒子里。现成的,设备齐全的房间模块是预制的,允许精确的工艺,以及简短的建筑和装配在现场。现代技术和不受影响的设计在这里自然会聚在一起。这一点在内部和外部都很明显。地基的金属外墙有垂直图案的表面,抽象排列的窗缝和从地板到天花板的玻璃表示紧缩。在四层房间的立面上,每个单元都是通过突出的金属壁板来强调的,除此之外,这座建筑显然是一座木质建筑,有着粗糙的、未经处理的落叶松垂直板。
A double-walled effect is created by arranging the rooms next to each other which also provides improved acoustic isolation. The bathroom is installed in a multi-functional box. The readymade, fully-equipped room modules were pre-fabricated allowing for precise workmanship as well as short construction and assembly at the site. Modern technology and unaffected design converge here naturally. This is evident both inside and out. The metal façade of the foundation with a vertical patterned surface, the abstractly arranged window slits and the floor-to-ceiling glazing demonstrate austerity. On the façade of the four floors of rooms, the individual modules are emphasized by way of protruding metal siding, apart from that, the building is clearly a wood construction with vertical slats of rough-cut, untreated larch.
© Marc Lins
C.Marc Lins
模块化设计中的居住空间酒店独特的核心是其独特的房间,灵感来自大众汽车的形象。一张大的墙到墙的床,一扇从地板到天花板的全景窗,带有狭窄的通风翼和一个深窗台,以及作为一个盒子设置的紧凑型浴缸。无数深思熟虑的细节使房间变得特别;角落里的大暖气元件用来烘干手套和衣服,几个钩子用来装零碎的东西。床可以用作沙发看电视和放松,自动折叠装置简化了这一转变。
Living Space in the Modular Design The distinctive centerpiece of the hotel is its individual rooms, inspired by the image of a VW bus. A large wall-to-wall bed, a floor-to-ceiling panorama window with narrow ventilation wings and a deep windowsill, as well as the compact bath set in as a box add to this image. Innumerable well-thought-out details make the rooms special; the large heating element in a corner to dry gloves and clothing, several hooks for odds and ends. The bed can be used as a sofa to watch TV and relax and an automatic folding device simplifies this transformation.
© Hannes Thalmann
汉尼斯·塔尔曼
Detail Module
细节模块
© Hannes Thalmann
汉尼斯·塔尔曼
标准房间,每一张床的宽度,是在15平方米的优化。还有四间无障碍客房和28间三人床客房。每个舱室被设计成一个房间模块,由云杉板组成,构成支架、隔板和内部装饰。双壁的效果是通过布置彼此相邻的房间来实现的,这也提供了改进的隔音效果。预制模块适合这种设计,并提供了明显的优势,高质量的工艺,以及短的建筑和装配现场。
The standard rooms, each the width of a bed, are optimized in just 15m². There are also four barrier-free and 28 triple-bed rooms. Each cabin is designed as a room-module made of spruce planks which form the supports, space dividers and the interior finishing all in one. The effect of a double-wall is achieved by arranging the rooms next to each other which also provides improved acoustic isolation. The prefabricated modules are suited for this design and offer the distinct advantage of high-quality workmanship, as well as short construction and assembly at the site.
© Marc Lins
C.Marc Lins
Architects Carlos Martinez Architekten
Location Lenzerheide, 7078 Vaz/Obervaz, Switzerland
Lead Architects Carlos Martinez, Matthias Waibel, Carmen Hernández
Area 4100.0 m2
Project Year 2017
Photographs Marc Lins, Hannes Thalmann, Revier Mountain Lodge
Category Hotels
Manufacturers Loading...

PintereAI








