Loft São Paulo treszerosete
2018-04-19 03:00
© Ana Mello
(Ana Mello)
架构师提供的文本描述。这80平方米的阁楼应该完全符合客户的生活方式,谁是年轻和单身。另一个需要解决的问题是,该财产是租来的。考虑到这些事实,我们决定设计公寓里的大部分家具,这样它们就可以在其他地方以不同的方式重复使用。
Text description provided by the architects. The 80m2 loft should fit perfectly with the way of life of the client who is young and single. Another issue to be addressed was the fact that the property was rented. Considering these facts, we decided to design most of the furniture in the apartment, so that they could be reused in different ways elsewhere.
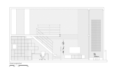
进入公寓的标志是一条限制其使用的小走廊,由此设计了一个可以通过个人物品传递居民个性的架子,同时也是日常使用物品的组织者。同样的架子从梯子上往下走,同时(架子和梯子),它们为集中注意力和工作创造了一个更私人的空间,正如客户的简报所要求的那样。
The access of the apartment is marked by a small corridor that limited its use, with that, was designed a shelf that could transmit the personality of the resident through personal objects and also be an organizer of objects of daily use. This same shelf advances down the ladder, and together (shelf and ladder), they create a more personal space for concentration and work, as requested by the client's briefing.
© Ana Mello
(Ana Mello)
较低的楼层和公共空间也被发展成容纳几个人坐着。在宽敞的沙发应该是灵活的,因此模块化。这套装还有一个长2.00米的梳妆台,另外还有一个长凳。
The lower floor and also the common space was developed to receive several people seated. The sofa beside being spacious should be flexible, and therefore modular. The set also has a dresser of 2.00m in length, which in addition serves as a bench.
Lower Floor Plan
低层平面图
阳台应该有助于会议,包括更多的椅子和桌子,可以作为一个座位,可以很容易地移动到客厅的盛宴日。墙壁和结构的物质性保持未完成,以及照明管道突出的表面砖,保持年轻和被剥夺的气氛从一开始就需要。
The balcony should help with meetings, containing more chairs and tables that could serve as a seat and that could easily be moved to the living room on feast days. The materiality of the walls and structure was maintained unfinished, as well as the lighting ducts highlighted by the apparent bricks, keeping the young and despoiled atmosphere desired from the start.
© Ana Mello
(Ana Mello)
Architects treszerosete
Location São Paulo, Brazil
Architects in Charge André Britto, Caio Ferraz, Kamal Yazbek
Area 80.0 m2
Project Year 2017
Photographs Ana Mello
Category Apartment Interiors
Manufacturers Loading...

PintereAI








