Amos Rex JKMM Architects
2018-08-29 05:00
© Mika Huisman
米卡·惠斯曼
架构师提供的文本描述。阿莫斯雷克斯起源于阿莫斯安德森艺术博物馆,该博物馆自1965年以来一直是赫尔辛基的主要私人博物馆。为了应付二十一世纪当代艺术的实践和展示的转变,阿莫斯·安德森艺术博物馆的理事们得出结论,比起博物馆现有的改建报社,更适合提供新的艺术体验。附近的Lasipalatsi建筑,芬兰保存最完好的1930年代功能主义建筑之一,被认为是博物馆的新家。
Text description provided by the architects. Amos Rex has its origins in the Amos Anderson Art Museum, which since 1965 has been Helsinki’s leading private museum. To meet changes in the practice and display of contemporary art in the 21st Century, the trustees of the Amos Anderson Art Museum concluded that a new venue would be better suited for providing new art experiences than the museum’s existing accommodation in converted newspaper offices. The nearby Lasipalatsi building, one of Finland’s best-preserved examples of 1930s functionalist architecture was identified as a new home for the museum.
Text description provided by the architects. Amos Rex has its origins in the Amos Anderson Art Museum, which since 1965 has been Helsinki’s leading private museum. To meet changes in the practice and display of contemporary art in the 21st Century, the trustees of the Amos Anderson Art Museum concluded that a new venue would be better suited for providing new art experiences than the museum’s existing accommodation in converted newspaper offices. The nearby Lasipalatsi building, one of Finland’s best-preserved examples of 1930s functionalist architecture was identified as a new home for the museum.
© Mika Huisman
米卡·惠斯曼
作为该项目的一部分,对Lasipalatsi进行了全面翻新,并特别注意保留包括芬兰第一次外部霓虹灯在内的原始特征。与赫尔辛基城市博物馆合作进行的来自历史资源的详细研究以及对现场材料的分析,使JKMM重新创建了一个符合原始设计的材料和颜色的调色板。
The Lasipalatsi has been comprehensively refurbished as part of the project, with special care given to preserve original features that include the first external neon lighting in Finland. Detailed research from historic sources as well as analysis of material on-site, conducted in partnership with the Helsinki City Museum, allowed JKMM to recreate a palette of materials and colours that is true to the original design.
The Lasipalatsi has been comprehensively refurbished as part of the project, with special care given to preserve original features that include the first external neon lighting in Finland. Detailed research from historic sources as well as analysis of material on-site, conducted in partnership with the Helsinki City Museum, allowed JKMM to recreate a palette of materials and colours that is true to the original design.
© Tuomas Uusheimo
(c)Uusheimo图洛马斯
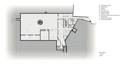
Floor Plan
© Tuomas Uusheimo
(c)Uusheimo图洛马斯
Floor Plan
© Tuomas Uusheimo
(c)Uusheimo图洛马斯
在LisPalatsi大厦的590座影院已经恢复到30世纪30年代的辉煌,并被纳入了新的机构,其名称的一半用于创建阿莫斯·雷克斯的身份。
Bio Rex, the 590 seat cinema within the Lasipalatsi building has been restored to its 1930s glory and incorporated into the new institution, giving half of its name to create the Amos Rex identity.
Bio Rex, the 590 seat cinema within the Lasipalatsi building has been restored to its 1930s glory and incorporated into the new institution, giving half of its name to create the Amos Rex identity.
© Mika Huisman
米卡·惠斯曼
游客从翻新的拉西帕塔西的门厅里走过一个楼梯,穿过一个图片窗口,可以在公共广场上看到风景,进入地下室的画廊。新画廊的屋顶是由一系列带有倾斜屋顶的圆顶形成的,屋顶灯可以看到周围建筑的景色,如果策展者选择,允许展览用自然光照亮。圆顶的形状在新景观的公共广场的地形中表达,该广场坐落在画廊的上方,作为一系列以混凝土瓦片包裹的平缓滚动的形式。
From the foyer of the refurbished Lasipalatsi, visitors descend a staircase past a picture window that affords views over the public square, into the basement galleries. The roof of the new gallery is formed by a series of domes with angled roof lights that frame views of the surrounding buildings and allow exhibitions to be lit with natural light if the curators choose. The shape of the domes is expressed in the topography of the newly landscaped public square which sits above the galleries, as a series of gently rolling forms clad in concrete tiles.
From the foyer of the refurbished Lasipalatsi, visitors descend a staircase past a picture window that affords views over the public square, into the basement galleries. The roof of the new gallery is formed by a series of domes with angled roof lights that frame views of the surrounding buildings and allow exhibitions to be lit with natural light if the curators choose. The shape of the domes is expressed in the topography of the newly landscaped public square which sits above the galleries, as a series of gently rolling forms clad in concrete tiles.
© Mika Huisman
米卡·惠斯曼
© Tuomas Uusheimo
(c)Uusheimo图洛马斯
LaSiPalatsi内现有的餐馆和商店将继续进行贸易,并将有助于促进公共广场的生活和活动,这是赫尔辛基城市中心社会生活的一个协调中心,是购物和娱乐区最重要的公共空间之一。广场也为阿莫斯雷克斯创造了一个户外活动的机会,以支持画廊的表演。
The existing restaurants and shops within the Lasipalatsi will continue to trade and will help contribute to the life and activity of the public square, which is a focal point for the social life of Helsinki city centre and one of the most important public spaces in the shopping and entertainment district. The square also provides an opportunity for Amos Rex to create a programme of outdoor events to support its gallery shows.
The existing restaurants and shops within the Lasipalatsi will continue to trade and will help contribute to the life and activity of the public square, which is a focal point for the social life of Helsinki city centre and one of the most important public spaces in the shopping and entertainment district. The square also provides an opportunity for Amos Rex to create a programme of outdoor events to support its gallery shows.
© Tuomas Uusheimo
(c)Uusheimo图洛马斯
该画廊将由世界级的技术和存储空间,在画廊之下的一个额外的地下室层,给予阿莫斯雷克斯必要的设施,以借出其他国际机构的艺术品。
The gallery will be supported by world-class technical and storage spaces in an additional basement storey beneath the galleries, giving Amos Rex the necessary facilities to loan artefacts from other institutions internationally.
The gallery will be supported by world-class technical and storage spaces in an additional basement storey beneath the galleries, giving Amos Rex the necessary facilities to loan artefacts from other institutions internationally.
© Tuomas Uusheimo
(c)Uusheimo图洛马斯
© Tuomas Uusheimo
(c)Uusheimo图洛马斯
开幕展览“团队实验室:无质量”展出了五件数字艺术品:四个完全沉浸在数字投影中的空间,包括一部在阿莫斯雷克斯首次亮相的新作品,以及一个基于液晶显示屏的展示。这次展览将是日本以外的集体完成的规模最大的展览之一,也是北欧地区第一次团队实验室展览。
The opening exhibition teamLab: Massless features five digital artworks: four fully immersive spaces created using digital projection, including a new work making its debut at Amos Rex, and an LCD screen-based display. The exhibition will be one of the largest completed by the collective outside Japan and the first teamLab exhibition in the Nordic region.
The opening exhibition teamLab: Massless features five digital artworks: four fully immersive spaces created using digital projection, including a new work making its debut at Amos Rex, and an LCD screen-based display. The exhibition will be one of the largest completed by the collective outside Japan and the first teamLab exhibition in the Nordic region.
© Tuomas Uusheimo
(c)Uusheimo图洛马斯
进入阿莫斯雷克斯将免费为每个18岁以下的人和一个艺术教育讲习班专门为儿童和青少年将占用空间旁边的主要画廊。18至30岁的游客将支付5欧元的特别优惠入场费。
Entry to Amos Rex will be free for everybody under the age of 18 and an art education workshop dedicated to children and youngsters will occupy space alongside the main gallery. Visitors between the ages of 18 and 30 will pay a special reduced entry fee of €5.
Entry to Amos Rex will be free for everybody under the age of 18 and an art education workshop dedicated to children and youngsters will occupy space alongside the main gallery. Visitors between the ages of 18 and 30 will pay a special reduced entry fee of €5.
© Tuomas Uusheimo
(c)Uusheimo图洛马斯
阿莫斯·雷克斯是由赫尔辛基市和作为慈善家阿莫斯·安德森遗赠的艺术基金会F reningen Konstsamfundet合资建造的。F reningen Konstsamfundet经营阿莫斯·安德森艺术博物馆,并为新的阿莫斯·雷克斯提供了所有资金。该基金会将把阿莫斯雷克斯作为一家私人机构运营。
Amos Rex was constructed through a joint venture between the City of Helsinki and the Föreningen Konstsamfundet, an arts foundation set up as the bequest of the philanthropist Amos Anderson. Föreningen Konstsamfundet operated the Amos Anderson Art Museum and has provided all the funding for the new Amos Rex. The foundation will operate Amos Rex as a private institution.
Amos Rex was constructed through a joint venture between the City of Helsinki and the Föreningen Konstsamfundet, an arts foundation set up as the bequest of the philanthropist Amos Anderson. Föreningen Konstsamfundet operated the Amos Anderson Art Museum and has provided all the funding for the new Amos Rex. The foundation will operate Amos Rex as a private institution.
© Tuomas Uusheimo
(c)Uusheimo图洛马斯
Architects JKMM Architects
Location Mannerheimintie 22-24, 00100 Helsinki, Finland
Leading Architect Asmo Jaaksi
Project Architects Freja Stahlberg-Aalto, Katja Savolainen
Participating Architects Teemu Kurkela, Samuli Miettinen, Juha Mäki-Jyllilä, Edit Bajsz, Markus Manninen, Christopher Delany, Marko Pulli, Jussi Vepsäläinen
Area 22000.0 m2
Project Year 2018
Photographs Mika Huisman, Tuomas Uusheimo
Category Public Architecture
Manufacturers Loading...

PintereAI








