Sydney Street House Fouché Architects
2018-11-15 17:00
© Cieran Murphy
C.Cieran Murphy
架构师提供的文本描述。原来的1946年前的房子占据了这个地点,以前曾被用作寄宿房屋。它已经升起,所有的走廊都被围起来了。生活空间被内化和隔离,外部和内部几乎没有联系。
Text description provided by the architects. The original pre-1946 house that occupied the site had previously been used as a boarding house. It had been raised and all verandahs were enclosed. The living spaces were internalised and segregated and there was little connection between outside and inside.
Text description provided by the architects. The original pre-1946 house that occupied the site had previously been used as a boarding house. It had been raised and all verandahs were enclosed. The living spaces were internalised and segregated and there was little connection between outside and inside.
© Cieran Murphy
C.Cieran Murphy
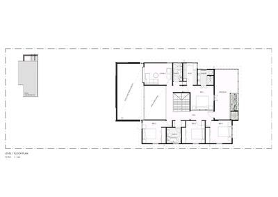
Ground floor plan
© Cieran Murphy
C.Cieran Murphy
翻修工程试图给一座原本沉闷、破旧的房子带来光明、触觉和连通性。目的包括拆除内部楼面空间以取代额外的楼面空间;创造出触觉、体积大和光线充足的空间;以及加强内部和外部空间之间的联系。
The renovation works sought to bring light, tactility and connectivity to an otherwise dreary and rundown house. Objectives included the removal of internal floor space in lieu of additional floor space; to create spaces that are tactile, voluminous and light-filled; and to strengthen connections between spaces both internally and externally.
The renovation works sought to bring light, tactility and connectivity to an otherwise dreary and rundown house. Objectives included the removal of internal floor space in lieu of additional floor space; to create spaces that are tactile, voluminous and light-filled; and to strengthen connections between spaces both internally and externally.
© Cieran Murphy
C.Cieran Murphy
为了将阳台恢复到原来的状态,为上层创造私人户外空间,从房子的前面拆除了墙壁。这种干预有助于使法舒德恢复到原来的状态。一旦项目简介集成到原始建筑空间中,剩余的空间被转换为双高度空隙空间。
Walls were removed from the front of the house in order to return the verandah to its original state and create private outdoor space for the upper level. This intervention helped to return the façade to its original state. Once the project brief was integrated into the original building footprint the leftover space was converted into a double height void space.
Walls were removed from the front of the house in order to return the verandah to its original state and create private outdoor space for the upper level. This intervention helped to return the façade to its original state. Once the project brief was integrated into the original building footprint the leftover space was converted into a double height void space.
© Cieran Murphy
C.Cieran Murphy
后部延伸是外部操作,但与内部生活空间有很强的联系,感觉就像是内部空间的一部分。材料调色板很结实。砖和斑点胶硬木主导灯笼般的结构,以创造住所和隐私。然后将砖和木材伸入底层楼板,进一步加强内外之间的关系。生活空间是通过对建筑元素和物质的战略定位来进行衔接和沟通的。
The rear extension is operationally external but has a strong connection to the internal living spaces and feels like it’s part of the internal space. The material palette is robust. Brick and spotted gum hardwood dominate the lantern-like structure to create shelter and privacy. The brick and timber then extend into the ground level floor plate to further strengthen the relationship between inside and out. The living spaces are cohesive and communicate via strategic positioning of built elements as well as materiality.
The rear extension is operationally external but has a strong connection to the internal living spaces and feels like it’s part of the internal space. The material palette is robust. Brick and spotted gum hardwood dominate the lantern-like structure to create shelter and privacy. The brick and timber then extend into the ground level floor plate to further strengthen the relationship between inside and out. The living spaces are cohesive and communicate via strategic positioning of built elements as well as materiality.
© Cieran Murphy
C.Cieran Murphy
Architects Fouché Architects
Location Brisbane, Australia
Lead Architects Larissa Fouché, Rayne Fouché
Area 368.0 m2
Project Year 2018
Photographs Cieran Murphy
Category Houses Interiors
Manufacturers Loading...

PintereAI








