MFRMGR creates semi-transparent cubicles for sound production office

2016-08-20 12:00

                            
华沙工作室MFRMGR已经翻新了波兰声音制作公司Ztudio的办公室,使用木制框架和聚碳酸酯片来创建半透明的工作区(幻灯片)。
MFRMGR被要求将Ztudio以前黑暗的办公室改造成一个明亮而宽敞的工作空间。

                            
为了保持低成本,该小组仅使用了三种主要材料来翻修录音和编辑工作室、接待区和会议区。
结构和骨架选用清漆松,墙板选用半透明聚碳酸酯,地板选用灰色橡胶。

                            
松木隔墙与暴露的框架是覆盖聚碳酸酯面板,而不是不透明的隔音,常见的声音制作工作室。
选择了半透明的材料,以帮助填补空间的光线,同样的原则通知了决定提供一个开放式的会议室,而不是封闭的房间。

                            
建筑师们说:“在单独的房间里进行的活动很少被看到,然而,花园的光线遍布整个一楼。”“在我们的设计中,我们提出了一个新的、合乎逻辑和功能的工作空间划分或临时会议。”
模块式书架被整合到存储书籍、杂志和办公设备的部门中。小壁龛也被用来展示多叶盆栽植物和仙人掌。

                            
墙壁被涂成白色,镜子被策略性地放置起来,创造出更多空间的错觉。
建筑师把这个项目命名为“爵士乐”!电影音乐剧之后。“我们认为它很有趣,适合我们的设计,”MFRMGR联合创始人米莎·格拉德科斯基告诉DeZeNe.

                            
演播室拒绝了传统的入口处接待处的布局,取而代之的是宽敞的公共区域,包括一张用于会议的大桌子。
使用简单的灯饰和廉价的家具,使租用空间的设计尽可能经济。

                            
一楼的重新布置也为衣帽间、行政和会计分开的房间和为临时会议提供安静的停车位提供了空间。
建筑师们只有两个多月的时间来完成翻修工作,而Ztudio的员工则是在休假期间离开的。

                            
MFRMGR为华沙的另一家公司创造了一个类似的空间,该公司在木制隔间内设置了单独的工作空间。
该工作室还计划将波罗的海的一座前波兰观景塔改造为水上运动爱好者的基地。
摄影是由Grzegorz Sztybel拍摄的。
项目贷项:
建筑:MFRMGR Frejda

                            
爆炸轴测图-点击以获得更大的图像

                            
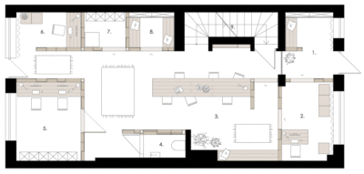
平面图-点击以获取更大的图像

                            
长段-点击获取更大的图像

                            
横截面-点击以获得更大的图像
阅读更多波兰内部,华沙,斯利德斯豪斯,MFRMGR波兰房屋
华沙工作室MFRMGR翻新了波兰声音制作公司ztudio的办公室,使用聚碳酸酯片来创建半透明的工作区。

举报

KOPPD

什么也没写

1782 作品/ 0 人气

  • 别默默的看了,快登录帮我评论一下吧!:)

    注册 登录

    更多评论

    推荐作品


    相关文章

    下载

    加入到画夹管理

    添加画夹

    提示

    右键保存、高清大图仅支持VIP会员
    名师作品集【专享】
    全网名师最多、更新最快、作品最全
    作品库【无限查阅、一键下载】
    全球最大室内作品库,超33万部
    精品资料【下载】
    全年精品资料更新超1000部
    灵感搜索【原图下载】
    中文搜索全球顶尖案例灵感图
    设计师生活馆【内购价】
    5大电商平台官方合作,专享内购价
    CAD库【模型下载】
    cad单体模型库精准搜索查找下载
    免广告打扰【屏蔽】
    屏蔽全站广告,享受纯净体验
    3D模型【送199币值199元】
    分享全网最新精品3D模型
    名师与资料完善后,价格涨至699元/年